豆豆网

 找回密码
 立即注册

QQ登录

只需一步,快速开始

查看: 2160|回复: 0

一份小学教学楼给排水CAD施工图纸(热水系统雨水系统)

[复制链接]

0

主题

0

帖子

1642

积分

超级版主

Rank: 8Rank: 8

积分
1642
发表于 2020-2-19 13:14:43 | 显示全部楼层 |阅读模式

该帖子包含附件可供参考学习和下载,您可以 搜索 更多您想要的资源


  • 附件设计说明:有
  • 建筑类别:文化
  • 设计年代:近代
  • 消防设计:雨淋系统
  • 项目所在地:山东

附件详情

  • 给排水设计说明
  • 给排水平面图
  • 给排水大样图
  • 给排水消火栓系统图
  • 车库自喷淋平面图和系统原理图
  • 车库给排水平面图
  • 车库消火栓系统原理图
  • 消防泵房平面图和集水坑详图
  • 泵房管线布置平面图
  • 泵房管线布置系统图

附件详情

一、项目概要:
该项目位于青岛市开发区金沙滩路北侧、烟台前社区安置区西侧,为多层公共建筑,建筑性质为,框架结构。地下车库部分为人防区域,人防区域由甲方委托专业人防院设计。本专业设计内容包括生活给水系统、污水系统、消火栓系统、及灭火器配置。
二、系统:
生活给水系统
热水系统
排水系统
雨水系统
,共13张。

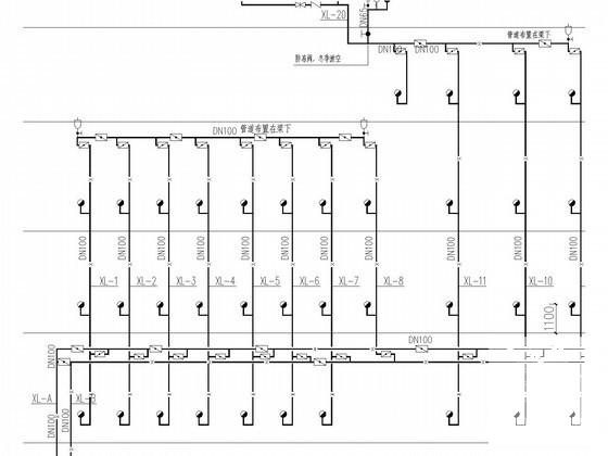
给排水系统原理图

消火栓系统原理图

车库给排水平面图

第 1 张图
第 1 张图
第 2 张图
第 2 张图
第 3 张图
第 3 张图
第 4 张图
第 4 张图
以上是部分图纸截图,有些图框没有放大后再截图,可能截图里不清晰或者看不到内容,您可以在下载后查看具体内容

温馨提示:该资料由网友于2020-2-19 13:14:43上传分享,您可以下载该资料进行学习和参考,如有侵权内容或者违法行为,请及时联系站长删除,如有疑问,您可以在给水排水专区发帖交流相关知识。

附件2099v11edew2d1efcf0se0see2.rar

3.55 MB

下载  售价: 100 积分    赚积分

相关帖子

回复

使用道具 举报

您需要登录后才可以回帖 登录 | 立即注册

本版积分规则

QQ|联系我们|豆豆网 ( 苏ICP备20004746号-1 )

GMT+8, 2025-12-28 00:54 , Processed in 0.016759 second(s), 28 queries .

本站所有内容均由网友自主分享,如有侵权内容或者违法行为,请及时联系站长删除,本站将根据实际情况进行积分奖励!请查看:免责声明

快速回复 返回顶部 返回列表