豆豆网

 找回密码
 立即注册

QQ登录

只需一步,快速开始

查看: 2472|回复: 0

一份一类高层公共建筑给排水CAD图纸

[复制链接]

0

主题

0

帖子

1075

积分

超级版主

Rank: 8Rank: 8

积分
1075
发表于 2020-2-22 00:32:23 | 显示全部楼层 |阅读模式

该帖子包含附件可供参考学习和下载,您可以 搜索 更多您想要的资源


  • 附件设计说明:有
  • 建筑类别:住宅
  • 建筑高度类型:高层建筑
  • 建筑设计面积:36700.00平方米
  • 建筑地上层数:18层
  • 建筑地下层数:1层
  • 图纸设计深度:施工图
  • 参考图纸:34张
  • 设计年代:近代
  • 地下室用途:车库
  • 生活供水设计:生活给水系统
  • 排水设计:污水系统,废水系统,雨水系统
  • 消防设计:室外消火栓系统,室内消火栓系统,喷淋系统,灭火器配置系统
  • 供水方式:市政供水
  • 排水体制:污废合流,雨污分流
  • 排水技术:重力排水
  • 雨水重现期:50年
  • 大样节点:卫生间
  • 项目所在地:重庆

附件详情

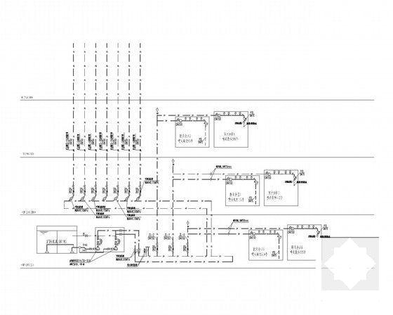
  • 喷淋平面图
  • 喷淋系统图
  • 消火栓平面图
  • 给排水平面图
  • 消火栓系统原理图
  • 商铺喷淋平面图
  • 卫生间给排水大样图
  • 给水系统原理图
  • 空调冷凝水系统原理图
  • 雨水系统原理图
  • 污水系统原理图

附件详情

该资料为重庆某一类高层公共建筑给排水图纸。
项目概要:该项目包括1#、2#两栋建筑,地上塔楼面积为36700平方米,为一类公共建筑。
设计内容:生活给水系统、排水(含废水)系统、雨水系统、消火栓系统、自喷系统、灭火器配置、消防排水及小型给水排水构筑物。
,共34张图。

一层平面图

消火栓系统原理图

喷淋系统图

2#一层卫生间排水大样图

消防水泵房大样图

高层公共建筑 - 1
第 1 张图
高层公共建筑 - 2
第 2 张图
高层公共建筑 - 3
第 3 张图
高层公共建筑 - 4
第 4 张图
高层公共建筑 - 5
第 5 张图
高层公共建筑 - 6
第 6 张图
以上是部分图纸截图,有些图框没有放大后再截图,可能截图里不清晰或者看不到内容,您可以在下载后查看具体内容

温馨提示:该资料由网友于2020-2-22 00:32:23上传分享,您可以下载该资料进行学习和参考,如有侵权内容或者违法行为,请及时联系站长删除,如有疑问,您可以在给水排水专区发帖交流相关知识。

附件2099v11edc0dw10d0wccsc2d11.rar

6.05 MB

下载  售价: 100 积分    赚积分

高层公共建筑相关帖子

回复

使用道具 举报

您需要登录后才可以回帖 登录 | 立即注册

本版积分规则

QQ|联系我们|豆豆网 ( 苏ICP备20004746号-1 )

GMT+8, 2025-12-18 03:36 , Processed in 0.015712 second(s), 28 queries .

本站所有内容均由网友自主分享,如有侵权内容或者违法行为,请及时联系站长删除,本站将根据实际情况进行积分奖励!请查看:免责声明

快速回复 返回顶部 返回列表