豆豆网

 找回密码
 立即注册

QQ登录

只需一步,快速开始

查看: 549|回复: 0

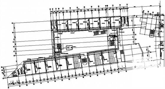
一份高等院校5层教学楼弱电系统施工平面CAD图纸

[复制链接]

0

主题

0

帖子

1355

积分

超级版主

Rank: 8Rank: 8

积分
1355
发表于 2020-2-22 10:30:08 | 显示全部楼层 |阅读模式

该帖子包含附件可供参考学习和下载,您可以 搜索 更多您想要的资源


  • 建筑类别:教育
  • 建筑高度类型:多层建筑
  • 建筑地上层数:5层
  • 图纸设计深度:施工图
  • 参考图纸:5张
  • 弱电设计:视频监控系统,通信系统,有线电视和卫星接收系统,信息网络系统

附件详情

  • 1、首层 弱电平面图
  • 2、二层弱电平面图
  • 3、三层弱电平面图
  • 4、四层弱电平面图
  • 5、五层弱电平面图

附件详情

该附件是某高等院校教学楼弱电系统施工平面图纸,弱电系统设计包含综合布线槽式桥架布置、其它弱电槽式桥架走向、电话系统设计、计算机网络系统设计、有线电视系统设计、视频监控系统设计等。

教学楼弱电系统 - 1
第 1 张图
教学楼弱电系统 - 2
第 2 张图
教学楼弱电系统 - 3
第 3 张图
以上是部分图纸截图,有些图框没有放大后再截图,可能截图里不清晰或者看不到内容,您可以在下载后查看具体内容

温馨提示:该资料由网友于2020-2-22 10:30:08上传分享,您可以下载该资料进行学习和参考,如有侵权内容或者违法行为,请及时联系站长删除,如有疑问,您可以在建筑施工专区发帖交流相关知识。

附件2099v11edeewefweswc1020f0c.rar

1.13 MB

下载  售价: 100 积分    赚积分

教学楼弱电系统相关帖子

回复

使用道具 举报

您需要登录后才可以回帖 登录 | 立即注册

本版积分规则

QQ|联系我们|豆豆网 ( 苏ICP备20004746号-1 )

GMT+8, 2025-11-25 12:33 , Processed in 0.018445 second(s), 27 queries .

本站所有内容均由网友自主分享,如有侵权内容或者违法行为,请及时联系站长删除,本站将根据实际情况进行积分奖励!请查看:免责声明

快速回复 返回顶部 返回列表