豆豆网

 找回密码
 立即注册

QQ登录

只需一步,快速开始

查看: 2627|回复: 0

一份高等院校9层图书馆空调通风及防排烟系统设计CAD施工图纸(人防设计)

[复制链接]

0

主题

0

帖子

1085

积分

超级版主

Rank: 8Rank: 8

积分
1085
发表于 2020-2-22 10:29:40 | 显示全部楼层 |阅读模式

该帖子包含附件可供参考学习和下载,您可以 搜索 更多您想要的资源


  • 附件设计说明:有
  • 建筑类别:教育,文化
  • 建筑高度类型:高层建筑
  • 建筑设计面积:71194平方米
  • 建筑地上层数:9层
  • 建筑地下层数:1层
  • 图纸设计深度:施工图
  • 参考图纸:61张
  • 设计年代:近代
  • 设计内容:空调,通风,防排烟,冷热源,机房,人防
  • 冷热源:电动压缩式冷水机组
  • 空调系统:全空气系统,空气-水系统
  • 水系统:单式泵,变流量
  • 送风方式:散流器送风
  • 项目所在地:福建

附件详情

一、项目概要:

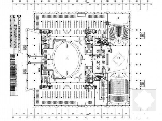
该项目位于福建省,是一高等院校图书馆建筑,地上9层,建筑面积59204平方米,地下1层,建筑面积11990平方米,总建筑面积71194平方米,建筑高度46.5m。图纸内容包含设计施工说明,主要设备材料表及图例,人防通风原理图,空调通风平面图,冷冻机房空调水系统原理图,防烟系统原理图,冷冻机房设备 平面布置图 等...

二、空调系统:

1.冷热源:压缩离心式水冷冷水机组,螺杆式水冷冷水机组...

2.风系统:采用集中式或半集中式空调,全空气系统,新风机组(或全热交换器)加风机盘管系统,...

3.水系统:采用一次泵变流量系统...

三、通风排烟系统:

1.通风系统:变配电所、机电设备用房等,均设置机械通风系统(送﹑排风风机箱及风管系统)。地下自行车库设有机械通风系统,由设在专用排风机房内的柜式离心风机箱负责排除有害废气,通过坡道自然补风。各层卫生间,均设置由风管式排风机或吊顶式排气扇构成的机械排风系统。书库等其他需要排除污浊空气或余热的房间、场所及无自然通风条件的内区房间等,也设有机械排风系统。对设置气体灭火的区域,设置事后排风风机,换气次数不小于5次/h...

2.防排烟系统:凡是不满足防火规范中的有关规定的超大的封闭房间、超长的封闭内走廊、中庭均设有独立的机械排烟系统,机械排烟风机箱设置在排烟机房内、设备平台上或屋面上,并根据需要设置补风系统...

1-2#楼地下一层 战时人防通风 平面

3#楼地下一层通风平面图

3#楼二层空调通风平面图

3#楼三层空调通风平面图

5#楼一层空调通风平面

冷冻机房空调水系统原理图

3#楼一层空调通风平面图

图书馆空调系统设计 - 1
第 1 张图
图书馆空调系统设计 - 2
第 2 张图
图书馆空调系统设计 - 3
第 3 张图
图书馆空调系统设计 - 4
第 4 张图
图书馆空调系统设计 - 5
第 5 张图
图书馆空调系统设计 - 6
第 6 张图
图书馆空调系统设计 - 7
第 7 张图
图书馆空调系统设计 - 8
第 8 张图
以上是部分图纸截图,有些图框没有放大后再截图,可能截图里不清晰或者看不到内容,您可以在下载后查看具体内容

温馨提示:该资料由网友于2020-2-22 10:29:40上传分享,您可以下载该资料进行学习和参考,如有侵权内容或者违法行为,请及时联系站长删除,如有疑问,您可以在暖通空调专区发帖交流相关知识。

附件2099v11ede2sfse1dc0cc1dc2e.rar

6.13 MB

下载  售价: 100 积分    赚积分

图书馆空调系统设计相关帖子

回复

使用道具 举报

您需要登录后才可以回帖 登录 | 立即注册

本版积分规则

QQ|联系我们|豆豆网 ( 苏ICP备20004746号-1 )

GMT+8, 2025-12-28 21:21 , Processed in 0.016198 second(s), 28 queries .

本站所有内容均由网友自主分享,如有侵权内容或者违法行为,请及时联系站长删除,本站将根据实际情况进行积分奖励!请查看:免责声明

快速回复 返回顶部 返回列表