豆豆网

 找回密码
 立即注册

QQ登录

只需一步,快速开始

查看: 2028|回复: 0

[CAD]6层大型火车站换乘服务设施工程电气图纸(甲级院)

[复制链接]

0

主题

0

帖子

1359

积分

超级版主

Rank: 8Rank: 8

积分
1359
发表于 2020-2-22 17:05:08 | 显示全部楼层 |阅读模式

该帖子包含附件可供参考学习和下载,您可以 搜索 更多您想要的资源


  • 建筑类别:交通建筑
  • 建筑高度类型:多层建筑
  • 建筑设计结构形式:钢筋混凝土结构
  • 建筑设计面积:14878平方米
  • 建筑地上层数:6层
  • 建筑地下层数:2层
  • 图纸设计深度:施工图
  • 参考图纸:60张
  • 设计年代:近代
  • 地下室用途:设备用房, 其它
  • 节点大样:线管, 电缆, 防雷接地, 等电位联结, 电阻测试点
  • 负荷等级:一级
  • 防雷等级:第二类
  • 火灾保护分级:一级
  • 安全防范:二级
  • 有线电视:B类
  • 监控图像等级:3级以上
  • 有线广播:火灾应急
  • 接地方式:TN-C-S
  • 项目所在地:山西
  • 强电设计:供配电系统, 低压配电, 电气照明, 建筑物防雷, 接地安全
  • 弱电设计:火灾自动报警系统, 视频监控系统, 综合布线系统, 有线电视和卫星接收系统

附件详情

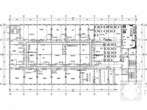
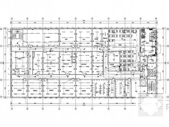
该项目是新建太原南站换乘服务设施工程行包房及客运用房,地下二层,地上主体六层。其中地下一层、地下二层为行包库,一层含行包库、业务大厅、信息机房及办公,二层设厨房、洗浴间,五层设培训室,六层设行车室;其余房间为生产用房。该项目总建筑面积14878平方米 ,建筑高度为24.76m。
该项目用电负荷等级为一级,采用两路10KV电源供电;在室外设置两座箱式变电站,在地下一层设置一座配电室;在一层设置一座弱电机房,一座消防控制室;采用集中报警系统。
内容包括:强弱电计说明,电气电外线,室外箱变系统图,竖向干线系统图,低压配电系统图,配电箱系统图,防雷接地平面图,综合布线系统图,视频监控系统图,火灾自动报警系统图,照明平面图,动力平面图,弱电平面图等。

火车站一层消防平面图

火车站竖向配电系统图

火车站二层照明平面图

火车站二层弱电平面图

火车站电气外线平面图

火车站地下一层照明平面图

火车站低压配电系统图

火车站2#箱变系统图

火车站火灾自动报警系统图

火车站电气 - 1
第 1 张图
火车站电气 - 2
第 2 张图
火车站电气 - 3
第 3 张图
火车站电气 - 4
第 4 张图
火车站电气 - 5
第 5 张图
火车站电气 - 6
第 6 张图
火车站电气 - 7
第 7 张图
火车站电气 - 8
第 8 张图
以上是部分图纸截图,有些图框没有放大后再截图,可能截图里不清晰或者看不到内容,您可以在下载后查看具体内容

温馨提示:该资料由网友于2020-2-22 17:05:08上传分享,您可以下载该资料进行学习和参考,如有侵权内容或者违法行为,请及时联系站长删除,如有疑问,您可以在电气工程专区发帖交流相关知识。

附件2099v11edeeee1d0ws2c0ffesc.rar

3.59 MB

下载  售价: 100 积分    赚积分

火车站电气相关帖子

回复

使用道具 举报

您需要登录后才可以回帖 登录 | 立即注册

本版积分规则

QQ|联系我们|豆豆网 ( 苏ICP备20004746号-1 )

GMT+8, 2025-12-28 03:48 , Processed in 0.014717 second(s), 27 queries .

本站所有内容均由网友自主分享,如有侵权内容或者违法行为,请及时联系站长删除,本站将根据实际情况进行积分奖励!请查看:免责声明

快速回复 返回顶部 返回列表