豆豆网

 找回密码
 立即注册

QQ登录

只需一步,快速开始

查看: 2302|回复: 0

一份小型多层办公楼空调通风系统初步设计CAD图纸

[复制链接]

0

主题

0

帖子

774

积分

超级版主

Rank: 8Rank: 8

积分
774
发表于 2020-2-27 16:46:27 | 显示全部楼层 |阅读模式

该帖子包含附件可供参考学习和下载,您可以 搜索 更多您想要的资源


  • 附件设计说明:无
  • 建筑类别:办公
  • 建筑高度类型:多层建筑
  • 图纸设计深度:方案(初设图)
  • 参考图纸:7张
  • 设计内容:空调

附件详情

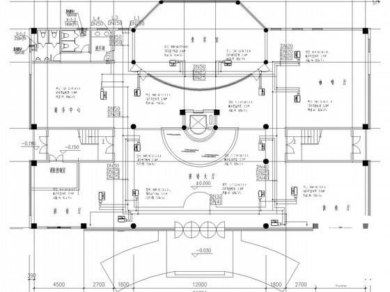
资料为小型多层办公楼空调通风系统初步设计图,地上6层...

图纸共7张。

空调风管平面图

机房原理图

空调水管平面图

小型办公楼设计图纸 - 1
第 1 张图
小型办公楼设计图纸 - 2
第 2 张图
小型办公楼设计图纸 - 3
第 3 张图
小型办公楼设计图纸 - 4
第 4 张图
以上是部分图纸截图,有些图框没有放大后再截图,可能截图里不清晰或者看不到内容,您可以在下载后查看具体内容

温馨提示:该资料由网友于2020-2-27 16:46:27上传分享,您可以下载该资料进行学习和参考,如有侵权内容或者违法行为,请及时联系站长删除,如有疑问,您可以在暖通空调专区发帖交流相关知识。

附件2099v11ede2swdcscesdfess2s.rar

680.52 KB

下载  售价: 100 积分    赚积分

小型办公楼设计图纸相关帖子

回复

使用道具 举报

您需要登录后才可以回帖 登录 | 立即注册

本版积分规则

QQ|联系我们|豆豆网 ( 苏ICP备20004746号-1 )

GMT+8, 2025-11-18 02:55 , Processed in 0.014735 second(s), 27 queries .

本站所有内容均由网友自主分享,如有侵权内容或者违法行为,请及时联系站长删除,本站将根据实际情况进行积分奖励!请查看:免责声明

快速回复 返回顶部 返回列表