豆豆网

 找回密码
 立即注册

QQ登录

只需一步,快速开始

查看: 941|回复: 0

多层办公楼供暖通风系统设计CAD施工图纸(节能设计)

[复制链接]

0

主题

0

帖子

1641

积分

超级版主

Rank: 8Rank: 8

积分
1641
发表于 2020-2-28 22:11:05 | 显示全部楼层 |阅读模式

该帖子包含附件可供参考学习和下载,您可以 搜索 更多您想要的资源


  • 附件设计说明:有
  • 建筑类别:办公
  • 建筑高度类型:多层建筑
  • 建筑设计面积:1234.80平方米
  • 建筑地上层数:2层
  • 图纸设计深度:施工图
  • 参考图纸:6张
  • 设计年代:近代
  • 设计内容:通风,采暖
  • 冷热源:市政热网
  • 采暖系统:热水辐射
  • 送风方式:散流器送风
  • 节点大样:集分水器
  • 项目所在地:山西

附件详情

一、项目概要:

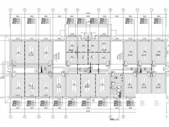
该项目位于山西省,是一个多层办公建筑,地上二层,总建筑设计面积:1234.80m2,建筑总高度:7.650m,建筑耐火等级:二级。图纸内容包含设计施工说明,主要设备材料表及图例,供暖系统图,热水辐射供暖地面做法,首层供暖干管平面图,首层供暖通风平面图等...

二、暖通系统节能设计:
1、该项目采用地板辐射供暖,入口处设置热计量表进行计量(热量表采用超声波式热量表),分水器每个环路均设置自力式温控阀 ,分室控制,达到节能要求。
2、供暖形式采用满足分室调节要求的供暖系统。

三、供暖系统:
1、热源由小区内换热站提供供回水45/35°C的低温热水,供暖系统定压由热力站统一解决。该项目采用地板辐射供暖.供暖干管敷设于一层地沟内,系统为下供下回异程式系统,供暖立管敷设于室内隐蔽处,各层引出支管接分集水器,分集水器半嵌墙安装。立管的最高点安装自动排气阀。立管最低点安装泄水阀,泄水管径为DN20。
2、该项目供暖总热负荷为76.6KW.热负荷指标为62W/m(供暖建筑面积1234.8m)...

四、通风系统:
1、卫生间设置通风器,设风量400m3/h带逆止阀的卫生间通风器。
2、其余房间设有可开启外窗,采用自然通风...

二层供暖通风平面图

首层供暖干管平面图

供暖系统图

办公楼节能设计 - 1
第 1 张图
办公楼节能设计 - 2
第 2 张图
办公楼节能设计 - 3
第 3 张图
办公楼节能设计 - 4
第 4 张图
以上是部分图纸截图,有些图框没有放大后再截图,可能截图里不清晰或者看不到内容,您可以在下载后查看具体内容

温馨提示:该资料由网友于2020-2-28 22:11:05上传分享,您可以下载该资料进行学习和参考,如有侵权内容或者违法行为,请及时联系站长删除,如有疑问,您可以在建筑施工专区发帖交流相关知识。

附件2099v11ede2sd22dsee0fcs2de.rar

415.7 KB

售价: 100 积分    赚积分

办公楼节能设计相关帖子

回复

使用道具 举报

您需要登录后才可以回帖 登录 | 立即注册

本版积分规则

QQ|联系我们|豆豆网 ( 苏ICP备20004746号-1 )

GMT+8, 2025-12-16 03:29 , Processed in 0.017240 second(s), 27 queries .

本站所有内容均由网友自主分享,如有侵权内容或者违法行为,请及时联系站长删除,本站将根据实际情况进行积分奖励!请查看:免责声明

快速回复 返回顶部 返回列表