豆豆网

 找回密码
 立即注册

QQ登录

只需一步,快速开始

查看: 2433|回复: 0

一份3层小型办公楼空调设计CAD施工图纸(系统原理图)

[复制链接]

0

主题

0

帖子

1488

积分

超级版主

Rank: 8Rank: 8

积分
1488
发表于 2020-2-27 12:39:16 | 显示全部楼层 |阅读模式

该帖子包含附件可供参考学习和下载,您可以 搜索 更多您想要的资源


  • 附件设计说明:有
  • 建筑类别:办公
  • 建筑高度类型:多层建筑
  • 建筑设计面积:3100平方米
  • 建筑地上层数:3层
  • 建筑地下层数:1层
  • 图纸设计深度:施工图
  • 参考图纸:7张
  • 设计年代:近代
  • 设计内容:空调
  • 冷热源:空气源热泵
  • 空调系统:全水系统
  • 水系统:双管制
  • 送风方式:侧面送风

附件详情

  • 空调工程设计说明
  • 空调平面图
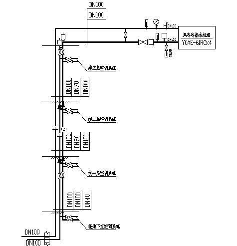
  • 机房空调系统原理图
  • 水系统图
  • 屋面排水平面图

附件详情

建筑概况:该项目为****有限公司办公楼建筑面积为3100m2。地下1层,地上3层。
空调形式:根据甲方建议及建筑类别要求,该项目拟采用风机盘管系统(全水系统)暂不考虑新风系统。
空调水系统: 该项目为全水空调系统,为了系统运行稳定,调节方便。
空调冷热媒水由冷热站供给......

,图纸共7张。

水系统图.JPG

机房空调系统原理图.jpg

地下空调平面图.jpg

设计施工图.jpg

小型办公楼图 - 1
第 1 张图
小型办公楼图 - 2
第 2 张图
小型办公楼图 - 3
第 3 张图
小型办公楼图 - 4
第 4 张图
小型办公楼图 - 5
第 5 张图
以上是部分图纸截图,有些图框没有放大后再截图,可能截图里不清晰或者看不到内容,您可以在下载后查看具体内容

温馨提示:该资料由网友于2020-2-27 12:39:16上传分享,您可以下载该资料进行学习和参考,如有侵权内容或者违法行为,请及时联系站长删除,如有疑问,您可以在暖通空调专区发帖交流相关知识。

附件2099v11ede2fcsswwfces1s2fs.rar

557.99 KB

下载  售价: 100 积分    赚积分

小型办公楼图相关帖子

回复

使用道具 举报

您需要登录后才可以回帖 登录 | 立即注册

本版积分规则

QQ|联系我们|豆豆网 ( 苏ICP备20004746号-1 )

GMT+8, 2025-12-27 09:50 , Processed in 0.015650 second(s), 27 queries .

本站所有内容均由网友自主分享,如有侵权内容或者违法行为,请及时联系站长删除,本站将根据实际情况进行积分奖励!请查看:免责声明

快速回复 返回顶部 返回列表