豆豆网

 找回密码
 立即注册

QQ登录

只需一步,快速开始

查看: 3174|回复: 0

一份5层防洪监控办公楼空调通风及防排烟系统CAD施工图纸(冷冻机房)

[复制链接]

0

主题

0

帖子

1358

积分

超级版主

Rank: 8Rank: 8

积分
1358
发表于 2020-2-27 22:11:48 | 显示全部楼层 |阅读模式

该帖子包含附件可供参考学习和下载,您可以 搜索 更多您想要的资源


  • 附件设计说明:有
  • 建筑类别:办公
  • 建筑高度类型:多层建筑
  • 建筑设计面积:18259平方米
  • 建筑地上层数:5层
  • 建筑地下层数:1层
  • 图纸设计深度:施工图
  • 参考图纸:24张
  • 设计年代:近代
  • 设计内容:空调,通风,防排烟,冷热源,机房,其它
  • 冷热源:水地源热泵
  • 空调系统:空气-水系统,制冷剂系统
  • 水系统:单式泵,双管制,同程式,闭式
  • 送风方式:散流器送风
  • 项目所在地:江苏

一、项目概要:
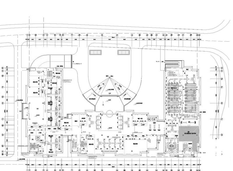
该项目位于江苏省,是一个多层防洪工程监控中心办公楼建筑项目,地上5层,地下1层,总建筑面积18259平方米,其中地下6535平方米,地上11724平方米,建筑高度23.95米。
图纸内容主要包含空调通风设计及施工说明,主要设备材料表及图例,通风风管平面图,空调风管平面图,空调水管平面图,冷冻机房大样图,冷冻机房系统原理图,安装大样图,空调立管系统图,安装剖面图等...

二、空调设计:
1.冷热源:采用地源热泵空调系统...
2.风系统:采用吊顶或落地空调机组,风机盘管加新风系统...
3.水系统:采用两管制一次泵闭式机械循环系统,采用同程式...

三、通风防排烟系统:
通风系统:
设置通风系统的场所详见设计施工说明,冷冻机房,变电机房设置独立的通风系统,其中冷冻机房的通风系统兼用事故排风系统...
防排烟系统:
防烟设计:大楼楼梯间在外墙开窗(门),五层开窗面积>2平米,满足自然排烟要求。排烟设计:地下一层汽车库采用机械排烟系统,排烟量按6次/h换气次数计算...

图纸展示:
地下一层通风风管平面图
地下一层空调水管平面图
一层空调风管平面图
一层空调水管平面图
冷冻机房大样图
冷冻机房系统原理图
第 1 张图
第 1 张图
第 2 张图
第 2 张图
第 3 张图
第 3 张图
第 4 张图
第 4 张图
第 5 张图
第 5 张图
第 6 张图
第 6 张图
以上是部分图纸截图,有些图框没有放大后再截图,可能截图里不清晰或者看不到内容,您可以在下载后查看具体内容

温馨提示:该资料由网友于2020-2-27 22:11:48上传分享,您可以下载该资料进行学习和参考,如有侵权内容或者违法行为,请及时联系站长删除,如有疑问,您可以在暖通空调专区发帖交流相关知识。

附件2099v11edecww1w2dee2s2ec1c.rar

9.27 MB

下载  售价: 100 积分    赚积分

相关帖子

回复

使用道具 举报

您需要登录后才可以回帖 登录 | 立即注册

本版积分规则

QQ|联系我们|豆豆网 ( 苏ICP备20004746号-1 )

GMT+8, 2025-12-19 11:40 , Processed in 0.014441 second(s), 27 queries .

本站所有内容均由网友自主分享,如有侵权内容或者违法行为,请及时联系站长删除,本站将根据实际情况进行积分奖励!请查看:免责声明

快速回复 返回顶部 返回列表