豆豆网

 找回密码
 立即注册

QQ登录

只需一步,快速开始

查看: 2866|回复: 0

一份20层商业办公楼通风空调及防排烟系统设计CAD施工图纸

[复制链接]

0

主题

0

帖子

776

积分

超级版主

Rank: 8Rank: 8

积分
776
发表于 2020-2-28 08:24:29 | 显示全部楼层 |阅读模式

该帖子包含附件可供参考学习和下载,您可以 搜索 更多您想要的资源


  • 附件设计说明:有
  • 建筑类别:办公,商业
  • 建筑高度类型:高层建筑
  • 建筑地上层数:20层
  • 建筑地下层数:3层
  • 图纸设计深度:施工图
  • 参考图纸:32张
  • 设计年代:近代
  • 设计内容:空调,通风,防排烟
  • 冷热源:电动压缩式冷水机组,锅炉
  • 空调系统:全空气系统,空气-水系统
  • 水系统:变流量,双管制,闭式
  • 送风方式:散流器送风
  • 项目所在地:江苏

附件详情

  • 设计及施工说明
  • 主要设备表
  • 锅炉房、制冷机房系统图
  • 通风、空调及防排烟系统原理图
  • 水系统轴测图
  • 地下三层平面图
  • 地下二层平面图
  • 地下一层平面图
  • 一层平面图
  • ...
  • 锅炉房 平面布置图
  • 锅炉房管道连接图
  • 制冷机房平面布置图
  • 制冷机房管道连接图
  • 锅炉房、制冷机房剖面图
  • 机房大样
  • ...

附件详情

一、项目概要:
该项目高层办公楼,地下三层为汽车库,地下二~四层为商业,五~二十层为办公...
二、冷热源:
冷源采用螺杆式水冷机组2台集中供应,冷冻水供回水温度为7/12°c。热源采用常压型热水锅炉...
三、空调系统:
1.空调水系统为两管制闭式机械循环。水系统采用变流量系统。
2.大空间商场采用全空气系统,吊装式空气处理机组加新风系统...
四、通风排烟系统:
1.前室、防烟楼梯间分别设有正压送风系统:楼梯间二~三设一常开百叶式送风口。
2.汽车库设有机械通风兼排烟系统:排风排烟量均按6次/h考虑,送风量为不大于排烟量的80%。
3.地上商业及走道均采用自然排烟,自然排烟窗面积为建筑面积的2%...

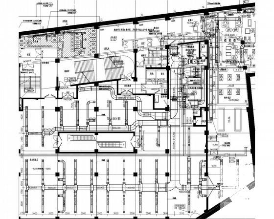
图纸共32张。

地下三层平面图

锅炉房、制冷机房系统图

锅炉房平面布置图

空调机房平面图

三层平面图

水系统轴测图

通风、空调及防排烟系统流程图

制冷机房管道连接图

锅炉房管道连接图

第 1 张图
第 1 张图
第 2 张图
第 2 张图
第 3 张图
第 3 张图
第 4 张图
第 4 张图
第 5 张图
第 5 张图
第 6 张图
第 6 张图
第 7 张图
第 7 张图
以上是部分图纸截图,有些图框没有放大后再截图,可能截图里不清晰或者看不到内容,您可以在下载后查看具体内容

温馨提示:该资料由网友于2020-2-28 08:24:29上传分享,您可以下载该资料进行学习和参考,如有侵权内容或者违法行为,请及时联系站长删除,如有疑问,您可以在商业建筑专区发帖交流相关知识。

附件2099v11edeccfccf0ccse21202.rar

6.87 MB

下载  售价: 100 积分    赚积分

相关帖子

回复

使用道具 举报

您需要登录后才可以回帖 登录 | 立即注册

本版积分规则

QQ|联系我们|豆豆网 ( 苏ICP备20004746号-1 )

GMT+8, 2025-12-18 05:44 , Processed in 0.015484 second(s), 27 queries .

本站所有内容均由网友自主分享,如有侵权内容或者违法行为,请及时联系站长删除,本站将根据实际情况进行积分奖励!请查看:免责声明

快速回复 返回顶部 返回列表