豆豆网

 找回密码
 立即注册

QQ登录

只需一步,快速开始

查看: 2918|回复: 0

3层医药厂房暖通空调设计CAD施工图纸(平面布置图)

[复制链接]

0

主题

0

帖子

1830

积分

超级版主

Rank: 8Rank: 8

积分
1830
发表于 2020-2-28 08:24:36 | 显示全部楼层 |阅读模式

该帖子包含附件可供参考学习和下载,您可以 搜索 更多您想要的资源


  • 附件设计说明:有
  • 建筑类别:工业建筑
  • 建筑高度类型:多层建筑
  • 建筑地上层数:3层
  • 图纸设计深度:施工图
  • 参考图纸:61张
  • 设计年代:近代
  • 设计内容:空调,通风,防排烟
  • 冷热源:电动压缩式冷水机组
  • 空调系统:全空气系统
  • 送风方式:散流器送风
  • 节点大样:空气处理机组,管道支吊架
  • 项目所在地:四川

附件详情

  • 施工、设计总说明
  • 主要设备一览表
  • 管道材料一览表
  • 洁净区送风管平面图
  • 通风、防排烟平面图
  • 排风管 平面布置图
  • 施工设计图

附件详情

一、项目概要
本项目为一化学原料药车间暖通空调设计。此建筑物共三层,一层层高5.5m,二、三层层高7.5m。甲类厂房,建筑物耐火等级二级......
二、设计内容
1、主要内容:①洁净空调系统设计;②舒适性空调系统设计;③通风系统设计;④防排烟系统设计......
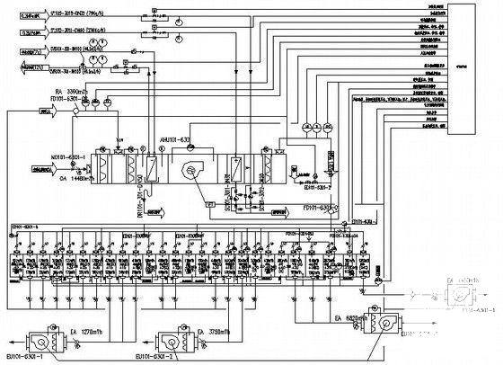
2、冷热源及空调水系统:净化空调冷媒采用7/12°C冷冻水来自厂区冷冻站。空调加热热媒采用蒸汽,空调加湿采用蒸汽......
3、空调风系统:送回风方式采用顶送、下侧回方式,舒适性空调采用变制冷剂流量(VRV)+新风系统......
4、通风排样系统:非洁净区排风采用管道换气扇、轴流风机、柜式离心风机,换气次数8次/h;超过20米的内走道设置机械排烟系统,机械补风系统......


,图纸共61张。

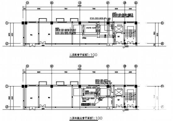
风管平面布置图

冷凝水管平面布置图

暖通空调安装流程图

施工设计图

药厂平面布置图 - 1
第 1 张图
药厂平面布置图 - 2
第 2 张图
药厂平面布置图 - 3
第 3 张图
药厂平面布置图 - 4
第 4 张图
药厂平面布置图 - 5
第 5 张图
以上是部分图纸截图,有些图框没有放大后再截图,可能截图里不清晰或者看不到内容,您可以在下载后查看具体内容

温馨提示:该资料由网友于2020-2-28 08:24:36上传分享,您可以下载该资料进行学习和参考,如有侵权内容或者违法行为,请及时联系站长删除,如有疑问,您可以在暖通空调专区发帖交流相关知识。

附件2099v11ede2fedw1011c2fecf1.rar

5.23 MB

下载  售价: 100 积分    赚积分

药厂平面布置图相关帖子

回复

使用道具 举报

您需要登录后才可以回帖 登录 | 立即注册

本版积分规则

QQ|联系我们|豆豆网 ( 苏ICP备20004746号-1 )

GMT+8, 2025-11-7 10:55 , Processed in 0.016699 second(s), 27 queries .

本站所有内容均由网友自主分享,如有侵权内容或者违法行为,请及时联系站长删除,本站将根据实际情况进行积分奖励!请查看:免责声明

快速回复 返回顶部 返回列表