豆豆网

 找回密码
 立即注册

QQ登录

只需一步,快速开始

查看: 2765|回复: 0

一份15层高档酒店空调通风设计CAD施工图纸(地下层防排烟)

[复制链接]

0

主题

0

帖子

1486

积分

超级版主

Rank: 8Rank: 8

积分
1486
发表于 2020-2-28 22:11:03 | 显示全部楼层 |阅读模式

该帖子包含附件可供参考学习和下载,您可以 搜索 更多您想要的资源


  • 建筑类别:综合建筑,办公建筑,娱乐餐饮
  • 建筑类型:高层建筑
  • 建筑设计面积:20748平方米
  • 建筑高度:57.3m
  • 地上楼层:15
  • 地下楼层:1
  • 地下室:其它
  • 设计阶段:施工图设计
  • 设计内容:空调,通风,水箱 ,机房,防火排烟
  • 附件设计说明:有,设计参数,保温防腐,施工安装要求
  • 空调系统:低温送风,变风量
  • 冷热源:风冷热泵
  • 参考图纸:20-50张
  • 设计年代:近代

附件详情

  • 暖通设计说明及图例
  • 通风空调主要设备表
  • 风机盘管接管大样
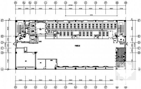
  • 空调风管平面图
  • 地下层防排烟排风管道平面图
  • 地下层防排烟补风管道平面图
  • 空调水管平面图
  • 空调机房设备平面图
  • 空调系统原理示意图
  • 屋面通风及排烟管道平面、剖面图
  • 空调机房设备及管道平面图
  • 防烟楼梯间加压送风系统图
  • 消防电梯前室加压送风系统图
  • 走道排烟系统图
  • 空调供回水立管系统图

附件详情

此稿件为陕西某大型酒店空调通风及防排烟设计施工图;该建筑地下一层为办公室,库房等功能区,地上十五层为会议室,客房,空调机房;总建筑面积为20748m2,总建筑高度为57.3m。
设计内容:1.负一及一~十五层空调,卫生间通风及新风系统设计。
2.地下室通风及防排烟系统设计。
空调风系统:本酒店全部采用风机盘管加新风系统,过渡季节自然补新风。地下一层及一~三层风机盘管接短风管,采用散流器下送风方式,四~十五层客房采用风机盘管侧送下回气流组织方式。新风由设在各层的吊顶新风空调机组提供,经散流器或单层百叶风口送至各个房间或走廊。

,图纸共27张。


空调系统原理示意图

软水箱配管图

风机盘管安装图

加压送风系统图

空调机房设备及管道安装平面图

空调水管平面图

风机基础图

第 1 张图
第 1 张图
第 2 张图
第 2 张图
第 3 张图
第 3 张图
第 4 张图
第 4 张图
第 5 张图
第 5 张图
第 6 张图
第 6 张图
以上是部分图纸截图,有些图框没有放大后再截图,可能截图里不清晰或者看不到内容,您可以在下载后查看具体内容

温馨提示:该资料由网友于2020-2-28 22:11:03上传分享,您可以下载该资料进行学习和参考,如有侵权内容或者违法行为,请及时联系站长删除,如有疑问,您可以在酒店建筑专区发帖交流相关知识。

附件2099v11ede2ecdccewcc0dsc22.rar

3.34 MB

下载  售价: 100 积分    赚积分

相关帖子

回复

使用道具 举报

您需要登录后才可以回帖 登录 | 立即注册

本版积分规则

QQ|联系我们|豆豆网 ( 苏ICP备20004746号-1 )

GMT+8, 2025-12-21 12:03 , Processed in 0.016491 second(s), 27 queries .

本站所有内容均由网友自主分享,如有侵权内容或者违法行为,请及时联系站长删除,本站将根据实际情况进行积分奖励!请查看:免责声明

快速回复 返回顶部 返回列表