豆豆网

 找回密码
 立即注册

QQ登录

只需一步,快速开始

查看: 3076|回复: 0

一份22层酒店办公楼建筑空调通风排烟系统设计CAD施工图纸

[复制链接]

0

主题

0

帖子

774

积分

超级版主

Rank: 8Rank: 8

积分
774
发表于 2020-2-29 21:33:57 | 显示全部楼层 |阅读模式

该帖子包含附件可供参考学习和下载,您可以 搜索 更多您想要的资源


  • 附件设计说明:无
  • 建筑类别:酒店
  • 建筑地上层数:22层
  • 建筑地下层数:2层
  • 图纸设计深度:施工图
  • 参考图纸:18张
  • 设计年代:近代
  • 设计内容:空调,通风,防排烟,冷热源
  • 冷热源:电动压缩式冷水机组,锅炉
  • 空调系统:空气-水系统
  • 项目所在地:上海

附件详情

  • 图例
  • 主要设备表
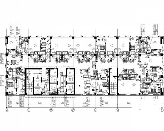
  • 空调通风平面图
  • 设备层空调通风平面图
  • 加压送风系统图
  • 内走道排烟系统原理图
  • 机房层空调通风平面图
  • 设备剖面图
  • ......

附件详情

一、项目概要:
项目位于上海市,为一商品房加酒店建筑,地上22层,地下2层......
二、冷热源:
冷热源采用离心式冷水机组,螺杆式冷水机组, 油气两用蒸汽锅炉......
三、空调系统:
采用组合式新风空调机组,超薄型吊顶空调机组......

图纸共18张

办公楼空调通风平面图

机房层空调通风平面图

设备剖面图

内走道排烟系统原理图

酒店建筑通风 - 1
第 1 张图
酒店建筑通风 - 2
第 2 张图
酒店建筑通风 - 3
第 3 张图
酒店建筑通风 - 4
第 4 张图
酒店建筑通风 - 5
第 5 张图
以上是部分图纸截图,有些图框没有放大后再截图,可能截图里不清晰或者看不到内容,您可以在下载后查看具体内容

温馨提示:该资料由网友于2020-2-29 21:33:57上传分享,您可以下载该资料进行学习和参考,如有侵权内容或者违法行为,请及时联系站长删除,如有疑问,您可以在酒店建筑专区发帖交流相关知识。

附件2099v11ede2dc0ceeescccsc2c.rar

3.36 MB

下载  售价: 100 积分    赚积分

酒店建筑通风相关帖子

回复

使用道具 举报

您需要登录后才可以回帖 登录 | 立即注册

本版积分规则

QQ|联系我们|豆豆网 ( 苏ICP备20004746号-1 )

GMT+8, 2025-11-4 11:08 , Processed in 0.020995 second(s), 27 queries .

本站所有内容均由网友自主分享,如有侵权内容或者违法行为,请及时联系站长删除,本站将根据实际情况进行积分奖励!请查看:免责声明

快速回复 返回顶部 返回列表