豆豆网

 找回密码
 立即注册

QQ登录

只需一步,快速开始

查看: 1716|回复: 0

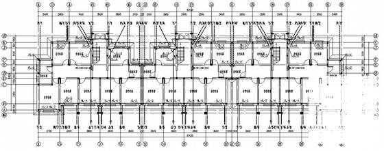
6层住宅楼给排水CAD图纸

[复制链接]

0

主题

0

帖子

1576

积分

超级版主

Rank: 8Rank: 8

积分
1576
发表于 2020-3-1 11:21:43 | 显示全部楼层 |阅读模式

该帖子包含附件可供参考学习和下载,您可以 搜索 更多您想要的资源


  • 附件设计说明:有
  • 建筑类别:住宅
  • 建筑高度类型:多层建筑
  • 建筑地上层数:6层
  • 图纸设计深度:施工图
  • 参考图纸:7张
  • 设计年代:近代
  • 生活供水设计:生活给水系统
  • 排水设计:污水系统,废水系统,雨水系统,机房排水
  • 供水方式:市政供水
  • 供水分区:无

附件详情

二.设计范围:该资料包括室内生活给水系统,室内排水系统,室内雨水系统。
1.生活给水系统: 本建筑生活用水由市政给水管网直接供给,给水支管明敷。 2.室内排水系统: 本建筑生活污水系统均采用伸顶通气管通气。屋面雨水经雨水立管排出至室外雨水井。四.管材及管道连接: 1.生活冷、热水给水管采用PP-R聚丙烯管,热熔连接。PP-R管道按《建筑给水聚丙烯管道(PP-R)工程技术规程》(DB32/T474-近代)执行。冷水给水管公称.......

第 1 张图
第 1 张图
第 2 张图
第 2 张图
第 3 张图
第 3 张图
第 4 张图
第 4 张图
以上是部分图纸截图,有些图框没有放大后再截图,可能截图里不清晰或者看不到内容,您可以在下载后查看具体内容

温馨提示:该资料由网友于2020-3-1 11:21:43上传分享,您可以下载该资料进行学习和参考,如有侵权内容或者违法行为,请及时联系站长删除,如有疑问,您可以在给水排水专区发帖交流相关知识。

附件2099v11edc0e2e1ws2ssffcd2e.rar

534.82 KB

下载  售价: 100 积分    赚积分

相关帖子

回复

使用道具 举报

您需要登录后才可以回帖 登录 | 立即注册

本版积分规则

QQ|联系我们|豆豆网 ( 苏ICP备20004746号-1 )

GMT+8, 2025-12-17 03:08 , Processed in 0.068438 second(s), 27 queries .

本站所有内容均由网友自主分享,如有侵权内容或者违法行为,请及时联系站长删除,本站将根据实际情况进行积分奖励!请查看:免责声明

快速回复 返回顶部 返回列表