豆豆网

 找回密码
 立即注册

QQ登录

只需一步,快速开始

查看: 1466|回复: 0

一份18层跃层住宅楼给排水设计CAD图纸(自动喷水灭火系统)

[复制链接]

0

主题

0

帖子

1642

积分

超级版主

Rank: 8Rank: 8

积分
1642
发表于 2020-3-1 12:52:53 | 显示全部楼层 |阅读模式

该帖子包含附件可供参考学习和下载,您可以 搜索 更多您想要的资源


  • 附件设计说明:有
  • 建筑类别:住宅
  • 建筑高度类型:高层建筑
  • 建筑设计面积:9618.63平方米
  • 建筑地上层数:18层
  • 建筑地下层数:1层
  • 图纸设计深度:施工图
  • 参考图纸:10张
  • 设计年代:近代
  • 生活供水设计:生活给水系统
  • 消防设计:室内消火栓系统,喷淋系统
  • 供水方式:市政供水
  • 供水分区:两区
  • 大样节点:阀门管件

附件详情

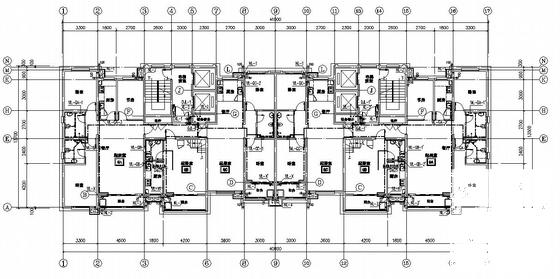
1.该项目为 XX小区-x#楼;
2.建筑设计面积:地上9618.63平方米;地下491.05平方米;
3.建筑层数: 地下一层、地上十八层;建筑高度: 54.9米(室外地坪至十八层平屋面结构板顶高度);
4.该项目建筑耐火等级:地下一级;地上 主楼为二级。
二、设计内容:生活给排水系统、消火栓系统、自动喷水灭火系统及灭火器配置。


消火栓及自动喷淋系统图

给排水平面图

自动喷淋平面图

跃层住宅给排水 - 1
第 1 张图
跃层住宅给排水 - 2
第 2 张图
跃层住宅给排水 - 3
第 3 张图
跃层住宅给排水 - 4
第 4 张图
以上是部分图纸截图,有些图框没有放大后再截图,可能截图里不清晰或者看不到内容,您可以在下载后查看具体内容

温馨提示:该资料由网友于2020-3-1 12:52:53上传分享,您可以下载该资料进行学习和参考,如有侵权内容或者违法行为,请及时联系站长删除,如有疑问,您可以在给水排水专区发帖交流相关知识。

附件2099v11edc0effd2ssdde0sf00.rar

1002.9 KB

下载  售价: 100 积分    赚积分

跃层住宅给排水相关帖子

回复

使用道具 举报

您需要登录后才可以回帖 登录 | 立即注册

本版积分规则

QQ|联系我们|豆豆网 ( 苏ICP备20004746号-1 )

GMT+8, 2025-12-27 13:02 , Processed in 0.015152 second(s), 27 queries .

本站所有内容均由网友自主分享,如有侵权内容或者违法行为,请及时联系站长删除,本站将根据实际情况进行积分奖励!请查看:免责声明

快速回复 返回顶部 返回列表