豆豆网

 找回密码
 立即注册

QQ登录

只需一步,快速开始

查看: 1896|回复: 0

一份18层住宅楼给排水施工工程CAD图纸

[复制链接]

0

主题

0

帖子

1075

积分

超级版主

Rank: 8Rank: 8

积分
1075
发表于 2020-3-1 13:42:52 | 显示全部楼层 |阅读模式

该帖子包含附件可供参考学习和下载,您可以 搜索 更多您想要的资源


  • 附件设计说明:有
  • 建筑类别:住宅
  • 建筑高度类型:高层建筑
  • 建筑地上层数:18层
  • 建筑地下层数:1层
  • 图纸设计深度:施工图
  • 参考图纸:44张
  • 设计年代:近代
  • 地下室用途:人防,车库
  • 生活供水设计:生活给水系统
  • 排水设计:污水系统,废水系统
  • 消防设计:室内消火栓系统,喷淋系统
  • 供水设备:水泵站
  • 供水方式:市政供水,变频供水,分区供水
  • 供水分区:三区
  • 排水体制:污废合流
  • 火灾危险等级:轻危险级,中危险级Ⅰ级
  • 消火栓用水量室外(L/S):15
  • 消火栓用水量室内(L/S):20
  • 大样节点:水箱,水泵,泵房,卫生间
  • 项目所在地:河北

附件详情

  • 给排水设计总说明主要设备表及图例
  • 首层给排水详图
  • 标准层给排水详图
  • 给排水及消防给水平面图
  • 自动喷淋平面图
  • 给排水及 消防系统
  • 消防泵房给排水详图
  • 生活及中水泵房给排水详图
  • 人防水箱间详图
  • 排水系统图
  • 顶水箱间平面详图
  • 给排水平面及卫生间详图系统图

附件详情

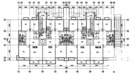
资料介绍:该资料为小屯村农民住宅工程。本期工程包括6栋高层住宅楼。1#,2

#,3#,6#,9#楼为18层,7#楼为17层,A区地下车库。部分车库为人防,包

括物资库和人员掩蔽;该项目两路引入DN200给水管作为给水水源。并从东侧路引

入DN100中水管,供应小区内全部的卫生间冲厕用水。市政给水压力不小于

0.20MPa。排水系统中的生活污水、废水进化粪池后集中排至市政污水管网;雨水

为外排水,排至室外散水。
设计内容:给排水系统:生活给水、中水给水、生活污废水及雨水系统。室内外

消火栓和自动喷水灭火系统。

,图纸共44张。

排水系统图

首层给排水详图

消防泵房给排水详图

生活及中水泵房给排水详图

第 1 张图
第 1 张图
第 2 张图
第 2 张图
第 3 张图
第 3 张图
第 4 张图
第 4 张图
第 5 张图
第 5 张图
以上是部分图纸截图,有些图框没有放大后再截图,可能截图里不清晰或者看不到内容,您可以在下载后查看具体内容

温馨提示:该资料由网友于2020-3-1 13:42:52上传分享,您可以下载该资料进行学习和参考,如有侵权内容或者违法行为,请及时联系站长删除,如有疑问,您可以在给水排水专区发帖交流相关知识。

附件2099v11edc0fcw1dwscc2sdf2s.rar

5.9 MB

下载  售价: 100 积分    赚积分

相关帖子

回复

使用道具 举报

您需要登录后才可以回帖 登录 | 立即注册

本版积分规则

QQ|联系我们|豆豆网 ( 苏ICP备20004746号-1 )

GMT+8, 2025-12-28 05:11 , Processed in 0.014224 second(s), 27 queries .

本站所有内容均由网友自主分享,如有侵权内容或者违法行为,请及时联系站长删除,本站将根据实际情况进行积分奖励!请查看:免责声明

快速回复 返回顶部 返回列表