豆豆网

 找回密码
 立即注册

QQ登录

只需一步,快速开始

查看: 679|回复: 0

一份12层教学楼行政楼通风排烟设计CAD施工图纸(正压送风系统)

[复制链接]

0

主题

0

帖子

1322

积分

超级版主

Rank: 8Rank: 8

积分
1322
发表于 2020-3-12 22:20:14 | 显示全部楼层 |阅读模式

该帖子包含附件可供参考学习和下载,您可以 搜索 更多您想要的资源


  • 附件设计说明:有
  • 建筑类别:教育
  • 建筑高度类型:多层建筑
  • 建筑设计面积:48.9平方米
  • 建筑地上层数:12层
  • 建筑地下层数:1层
  • 图纸设计深度:施工图
  • 参考图纸:14张
  • 设计年代:近代
  • 设计内容:空调,通风,防排烟,动力
  • 冷热源:空气调节器
  • 水系统:复式泵
  • 送风方式:散流器送风
  • 项目所在地:安徽

附件详情

一、项目概要
本项目为一教学综合楼通风空调设计,地上12层,地下1层,负一层为泵房,其他层主要为办公室及教室等,建筑高度48.9m。
二、设计内容
1、空调系统:
各功能用房设分体空调,预留室外机位置及穿墙孔洞,预留空调凝结水管。由电气专业预留电量及插座,室内自然进风......
2、通风系统:
①电梯机房、泵房设置机械排风系统按10次/h计算,自然进风。
②浴室设置机械排风系统按10次/h计算,自然进风......
3、防排烟系统:
①前室设置正压送风系统;
②防烟楼梯间采用自然防烟,每五层可开启外窗面积大于2m2。
③有可开启外窗的房间采用自然排烟的方式。采用自然排烟,可开启外窗的面积不小于该房间地面面积的2%......

,图纸共14张。


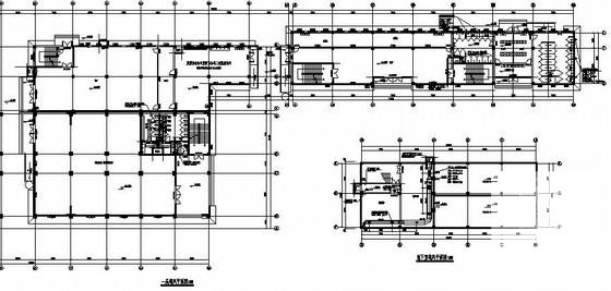
二层通风平面图

正压送风布置图

系统施工图

正压送风系统 - 1
第 1 张图
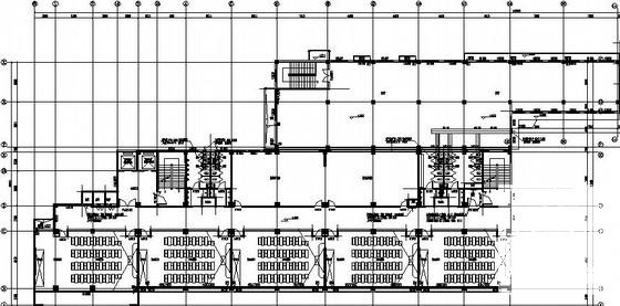
正压送风系统 - 2
第 2 张图
正压送风系统 - 3
第 3 张图
正压送风系统 - 4
第 4 张图
以上是部分图纸截图,有些图框没有放大后再截图,可能截图里不清晰或者看不到内容,您可以在下载后查看具体内容

温馨提示:该资料由网友于2020-3-12 22:20:14上传分享,您可以下载该资料进行学习和参考,如有侵权内容或者违法行为,请及时联系站长删除,如有疑问,您可以在建筑施工专区发帖交流相关知识。

附件2099v11ede2ffs1cdfc0ce2fss.rar

1.01 MB

下载  售价: 100 积分    赚积分

正压送风系统相关帖子

回复

使用道具 举报

您需要登录后才可以回帖 登录 | 立即注册

本版积分规则

QQ|联系我们|豆豆网 ( 苏ICP备20004746号-1 )

GMT+8, 2025-12-22 15:56 , Processed in 0.016512 second(s), 27 queries .

本站所有内容均由网友自主分享,如有侵权内容或者违法行为,请及时联系站长删除,本站将根据实际情况进行积分奖励!请查看:免责声明

快速回复 返回顶部 返回列表