豆豆网

 找回密码
 立即注册

QQ登录

只需一步,快速开始

查看: 2889|回复: 0

一份21层市政办公大厦空调通风设计CAD施工图纸(风冷热泵)(水系统流程图)

[复制链接]

0

主题

0

帖子

776

积分

超级版主

Rank: 8Rank: 8

积分
776
发表于 2020-3-29 14:24:25 | 显示全部楼层 |阅读模式

该帖子包含附件可供参考学习和下载,您可以 搜索 更多您想要的资源


  • 附件设计说明:有
  • 建筑类别:办公, 其他
  • 建筑高度类型:高层建筑
  • 建筑设计面积:19146平方米
  • 建筑地上层数:21层
  • 建筑地下层数:2层
  • 图纸设计深度:施工图
  • 参考图纸:54张
  • 设计年代:近代
  • 设计内容:空调, 通风, 防排烟, 冷热源
  • 冷热源:空气源热泵
  • 空调系统:全空气系统, 空气-水系统
  • 水系统:变流量, 双管制, 同程式, 异程式
  • 送风方式:侧面送风, 散流器送风, 喷口送风, 其他
  • 节点大样:风机盘管
  • 项目所在地:陕西

附件详情

  • 资料目录
  • 设计与施工总说明
  • 设计与施工通用说明
  • 主要设备材料表及图例
  • 地下室通风及防排烟平面图
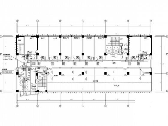
  • 空调及通风平面图
  • 空调水系统平面图
  • 屋顶层空调及通风平面图
  • 屋顶层冷热源平面图
  • 冷热源系统流程图
  • 办公部分水系统流程图
  • 宾馆部分水系统流程图
  • 加压送风系统原理图

附件详情

稿件为陕西安康某市政单位办公大厦空调通风设计施工图纸,地下二层,地上二十一层,建筑总面积为19146m2,总高度为88.2m。负二层设车库、水泵房;负一层为车库、柴油机房、配电房、管理用房等;一楼设办公大厅、政务服务大厅、展厅及信息中心等;二楼为城区所办公用房;三楼为会议用房;四至十一层用作宾馆,设客房、餐厅等,其他各层为各科、所办公用房。
设计内容:该大楼的空调系统设计,防排烟系统设计,通风系统设计,冷热源系统设计。该项目面积较大的办公大厅、展厅、视频会议室、大会议室等区域采用吊顶式空调机处理空气的全空气系统。新回风管上均设置电动阀,以便过渡季节全新风节能运行。其余面积较小的办公室及宾馆客房等采用风机盘管加独立新风系统……

,图纸共54张。


(办公部分)冷热源系统流程图

屋顶层冷热源平面图

空调平面大样

办公部分空调水系统流程图

十五层空调水系统平面图

风冷热泵系统流程图 - 1
第 1 张图
风冷热泵系统流程图 - 2
第 2 张图
风冷热泵系统流程图 - 3
第 3 张图
风冷热泵系统流程图 - 4
第 4 张图
风冷热泵系统流程图 - 5
第 5 张图
风冷热泵系统流程图 - 6
第 6 张图
以上是部分图纸截图,有些图框没有放大后再截图,可能截图里不清晰或者看不到内容,您可以在下载后查看具体内容

温馨提示:该资料由网友于2020-3-29 14:24:25上传分享,您可以下载该资料进行学习和参考,如有侵权内容或者违法行为,请及时联系站长删除,如有疑问,您可以在暖通空调专区发帖交流相关知识。

附件2099v11ede2e0wescwdfdcc21f.rar

3.76 MB

下载  售价: 100 积分    赚积分

风冷热泵系统流程图相关帖子

回复

使用道具 举报

您需要登录后才可以回帖 登录 | 立即注册

本版积分规则

QQ|联系我们|豆豆网 ( 苏ICP备20004746号-1 )

GMT+8, 2025-12-29 05:10 , Processed in 0.015934 second(s), 27 queries .

本站所有内容均由网友自主分享,如有侵权内容或者违法行为,请及时联系站长删除,本站将根据实际情况进行积分奖励!请查看:免责声明

快速回复 返回顶部 返回列表