豆豆网

 找回密码
 立即注册

QQ登录

只需一步,快速开始

查看: 3843|回复: 0

[CAD]8层服务中心空调通风施工图(知名院图纸)

[复制链接]

0

主题

0

帖子

1736

积分

超级版主

Rank: 8Rank: 8

积分
1736
发表于 2020-2-16 21:43:58 | 显示全部楼层 |阅读模式

该帖子包含附件可供参考学习和下载,您可以 搜索 更多您想要的资源


  • 附件设计说明:有
  • 建筑类别:办公,娱乐,餐饮
  • 建筑高度类型:高层建筑
  • 建筑设计面积:14456平方米
  • 建筑地上层数:8层
  • 建筑地下层数:1层
  • 图纸设计深度:施工图
  • 参考图纸:27张
  • 设计年代:近代
  • 设计内容:空调,通风,防排烟,机房
  • 冷热源:空气源热泵,空气调节器
  • 空调系统:全空气系统,制冷剂系统
  • 项目所在地:江苏

附件详情

  • 设计施工说明
  • 主要设备及材料表
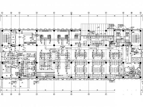
  • 空调通风平面图
  • 机房层空调通风平面图
  • 屋顶空调通风平面图
  • 防排烟原理图
  • 空调冷热水原理图
  • 空调机房详图
  • 通风机房详图

附件详情

稿件为江苏南通某事业单位后勤服务中心空调通风设计全套施工图纸;总建筑面积14456平方米,地上8层,地下1层,建筑高36.3米。
设计内容:该建筑的建空调通风、防排烟设计。工程总冷负荷1586.6kW,总热负荷1108.7kW;冷耗指标0.123kW/m2,热耗指标0.086kW/m2;冷热源选用两台额定制冷量为567kW的螺杆式风冷热泵机组和额定制冷量380匹变制冷剂流量空调机组(VRV)。其中风冷热泵机组服务于地下一层到四层的各类餐厅、包厢和宴会厅等,五层办公室、会议室、六层公共活动室、六~八层套间均采用VRV加新风空调系统……

,图纸共27张。

空调冷热水系统流程示意图

空调机房平面图

机房详图

系统图大样

通风机房剖面

空调风管布置大样

空调通风平面

[江苏]服务中心空调通风全套施工图(知名院图纸)

第 1 张图
第 1 张图
第 2 张图
第 2 张图
第 3 张图
第 3 张图
第 4 张图
第 4 张图
第 5 张图
第 5 张图
第 6 张图
第 6 张图
以上是部分图纸截图,有些图框没有放大后再截图,可能截图里不清晰或者看不到内容,您可以在下载后查看具体内容

温馨提示:该资料由网友于2020-2-16 21:43:58上传分享,您可以下载该资料进行学习和参考,如有侵权内容或者违法行为,请及时联系站长删除,如有疑问,您可以在暖通空调专区发帖交流相关知识。

附件2099v11ede2edsffedfcc0sd2c.rar

1.95 MB

下载  售价: 100 积分    赚积分

相关帖子

回复

使用道具 举报

您需要登录后才可以回帖 登录 | 立即注册

本版积分规则

QQ|联系我们|豆豆网 ( 苏ICP备20004746号-1 )

GMT+8, 2025-12-17 20:49 , Processed in 0.082208 second(s), 27 queries .

本站所有内容均由网友自主分享,如有侵权内容或者违法行为,请及时联系站长删除,本站将根据实际情况进行积分奖励!请查看:免责声明

快速回复 返回顶部 返回列表