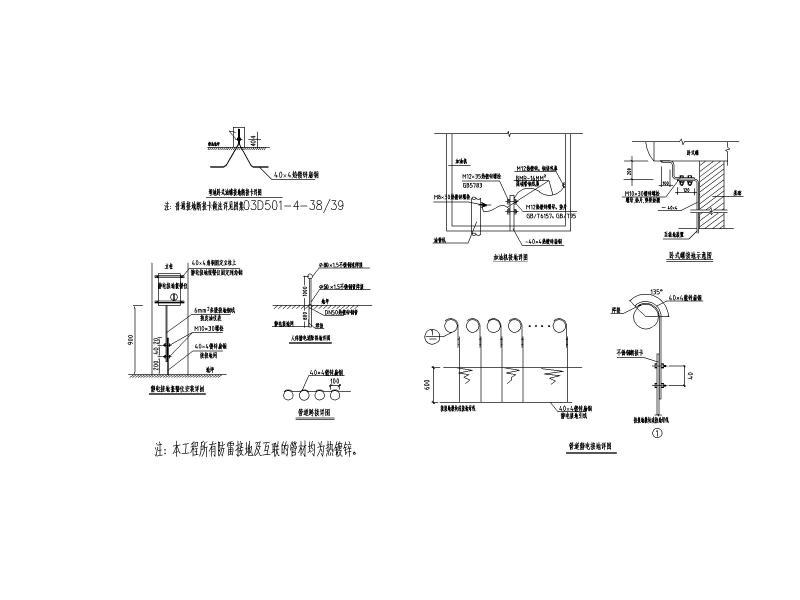
小型地面加油站电气施工CAD大样图
- 发布时间:2021-05-13
- 评论次数:0
- 浏览次数:0
- 文件大小:1.38 MB
- 收藏次数:0
- 
								文件名称: 附件-996085769855785999.dwg 附件-996085769855785999.dwg
								加油站电气图下载
							
						- 小型加油站电气设计CAD施工图纸(照明灯具布置)(dwg)
- 加油站电气施工图纸()
- 国内加油站电气CAD施工图纸
- 加油站机房电气CAD施工图纸
- 3层加油站电气施工图纸.
- 县加油站电气施工CAD图纸
- 某加油站地面燃气管道保护专项方案.doc
- 65平小型垃圾站电气施工CAD大样图
- 2层小型中学建筑电气设备施工CAD大样图
- 小型医院电气全套施工CAD图纸
- 小型门卫房电气施工CAD图纸
- 小型供水站电气施工CAD图纸
- 加油站电气CAD施工图纸(电气设计说明)(TN-S)
- [CAD]加油站电气设计施工图纸,含电气说明(TN-S)
- [CAD]上2层加油站电气设计施工图纸(电气照明).dwg
- 加油站电气CAD图纸(dwg格式)
- [CAD]加油站电气设计.dwg
- 小型节制闸工程施工CAD大样图
- 小型厂房电气设计CAD施工图纸
- 小型联户住宅楼电气CAD施工图纸
全部评论
						
							评论网友评论仅友表达个人看法,并不表明本站同意其观点,不得发布违反法律法规的内容!
						
						
 
	              	 
	              	 
	              	 
	              	 
	              	