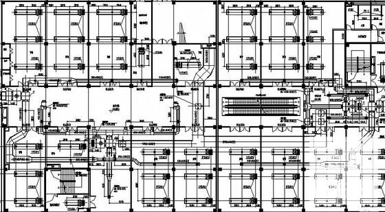
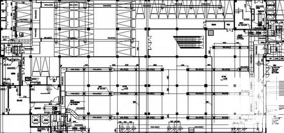
18172平米5层购物商场中央空调系统设计施工CAD图纸
- 发布时间:2021-04-30
- 评论次数:0
- 浏览次数:0
- 文件大小:1.68 MB
- 收藏次数:0
- 
								文件名称: 附件-995858796767697706076.rar 附件-995858796767697706076.rar
								中央空调系统设计下载
							
						- 5层购物商场中央空调系统设计CAD施工图纸(dwg)
- 商场中央空调系统设计CAD施工图纸
- 大型购物商场暖通空调设计CAD施工图纸
- 4层商场购物中心空调通风排烟系统设计施工CAD图纸
- 商场中央空调改造设计施工图纸.
- 中型商场中心建筑中央空调工程系统设计施工CAD图纸
- 15297平米3层商场中央空调系统施工设计CAD图纸
- 购物商场电气CAD施工图纸(dwg)
- 7层购物商场建筑施工CAD图纸
- 3层购物商场空调及防排烟系统设计施工CAD大样图
- 大型商场中央空调CAD施工图纸
- 15000平米3层商场中央空调系统CAD图纸
- 5层购物中心中央空调设计CAD施工图纸
- 7层大型购物商场暖通空调设计施工CAD图纸
- 一份建材商场中央空调暖通设计CAD施工图纸
- [分享]商场的中央空调设计格式图纸(施工方案图)
- 商场中央空调改造设计CAD施工图纸,共5张.dwg
- 8层商场中央空调设计CAD施工图纸,地下1层.dwg
- 5层中型商场中央空调设计CAD施工图纸
- 6层大型购物商场建筑施工CAD图纸(效果图纸)
全部评论
						
							评论网友评论仅友表达个人看法,并不表明本站同意其观点,不得发布违反法律法规的内容!
						
						
 
	              	 
	              	 
	              	 
	              	 
	              	