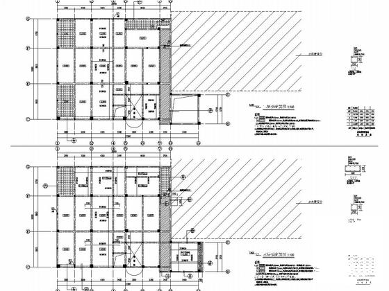
4层框架结构城建档案馆综合库房结构施工CAD大样图
- 发布时间:2021-05-09
- 评论次数:0
- 浏览次数:0
- 文件大小:2.55 MB
- 收藏次数:0
- 
								文件名称: 附件-995888059589698097085.rar 附件-995888059589698097085.rar
								档案馆施工下载
							
						- 一份档案馆综合库房电气CAD施工图纸(火灾自动报警)
- 城建综合档案馆工程设计招标文件101p.pdf
- 档案馆库房改扩建项目消防工程施工CAD图纸
- 单层框架结构水泥厂库房及其附属结构全套CAD施工大样图
- 多层框架结构档案馆结构施工大样图cad平面布置图
- 档案馆及图书馆库房空调系统设计.pdf
- 4层城建档案馆装修电气CAD图纸(建筑面积)
- 4层城建档案馆装修电气CAD图纸(建筑面积)
- 城建档案馆模型CAD效果图详细资料
- 某城建档案馆新馆库排烟系统计算书.pdf
- 框架结构库房门卫室结构施工方案cad图纸
- 8层框架结构档案馆结构施工CAD图纸(2层裙房)(dwg)
- 8层框架结构档案馆结构设计施工CAD图纸
- 地上3层框架结构档案馆结构设计施工CAD图纸
- 框架结构库房电气施工图(2017),平面图,系统图
- 某城建档案馆新馆库暖通施工图cad平面图及系统图
- 3层框架结构中学综合楼结构CAD施工大样图
- 5层框架结构公司综合楼结构施工CAD大样图
- 5层框架结构小学教学综合楼结构施工CAD大样图
- 地上4层框架结构综合楼结构施工CAD大样图
全部评论
						
							评论网友评论仅友表达个人看法,并不表明本站同意其观点,不得发布违反法律法规的内容!
						
						
 
	              	 
	              	 
	              	 
	              	 
	              	