豆豆网

 找回密码
 立即注册

QQ登录

只需一步,快速开始

查看: 2364|回复: 0

一份商业办公楼给排水CAD施工图纸(200米以上55层)

[复制链接]

0

主题

0

帖子

629

积分

超级版主

Rank: 8Rank: 8

积分
629
发表于 2020-2-19 14:28:51 | 显示全部楼层 |阅读模式

该帖子包含附件可供参考学习和下载,您可以 搜索 更多您想要的资源


  • 附件设计说明:有
  • 建筑类别:办公,商业
  • 建筑高度类型:高层建筑,超高层建筑
  • 建筑设计结构形式:其他结构
  • 建筑设计面积:134081平方米
  • 建筑地上层数:55层
  • 建筑地下层数:3层
  • 图纸设计深度:施工图
  • 参考图纸:90张
  • 设计年代:近代
  • 地下室用途:人防,车库,设备用房
  • 生活供水设计:生活给水系统
  • 生产供水设计:热水系统
  • 排水设计:污水系统,废水系统,雨水系统
  • 消防设计:室外消火栓系统,室内消火栓系统,喷淋系统
  • 供水设备:高位水箱,水泵站
  • 供水方式:市政供水,分区供水,高位水箱供水
  • 供水分区:三区
  • 排水体制:污废分流,雨污分流
  • 排水技术:重力排水
  • 火灾危险等级:中危险级Ⅰ级,中危险级Ⅱ级
  • 消火栓用水量室外(L/S):40
  • 消火栓用水量室内(L/S):30
  • 大样节点:卫生间
  • 项目所在地:广东

附件详情

  • 给排水设计施工说明
  • 一至六层给排水平面图
  • 6-9层给排水平面图
  • 10-12层给排水平面图
  • 13层给排水平面图
  • 14层给排水平面图
  • 15层给排水平面图
  • 16层给排水平面图
  • 17层给排水平面图
  • 18-22层给排水平面图
  • 23-28层给排水平面图
  • 29层给排水平面图
  • 30层给排水平面图
  • 31层给排水平面图
  • 32层(避难层)给排水平面图
  • 33-41层给排水平面图
  • 42层给排水平面图
  • 43层给排水平面图
  • 44,45,46层给排水平面图
  • 47层(避难层)给排水平面图
  • 48-53层给排水平面图
  • 54层(屋顶层)给排水平面图
  • 55层给排水平面图
  • 停机坪给排水平面图
  • 消火栓给水系统图
  • 生活给水系统图
  • 雨水及空调冷凝水系统图
  • 自喷给水系统图
  • 生活排水系统图
  • 地下一层给排水平面图
  • 地下二层给排水平面图
  • 地下三层给排水平面图
  • 一至六层自喷平面图
  • 6-9层自喷平面图
  • 10-12层自喷平面图
  • 13层自喷平面图
  • 14层自喷平面图
  • 15层自喷平面图
  • 16层自喷平面图
  • 17层自喷平面图
  • 18-22层自喷平面图
  • 23-28层自喷平面图
  • 29层自喷平面图
  • 30层自喷平面图
  • 31层自喷平面图
  • 32层(避难层)自喷平面图
  • 33-41层自喷平面图
  • 42层自喷平面图
  • 43层自喷平面图
  • 44,45,46层自喷平面图
  • 47层(避难层)自喷平面图
  • 48-53层自喷平面图
  • 54层(屋顶层)自喷平面图
  • 55层自喷平面图
  • ……

附件详情

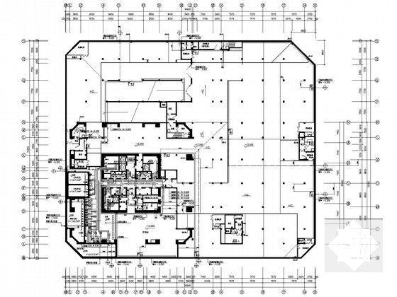
项目概要:本项目位于深圳,是一座集办公与商业一体的超高层民用建筑.地上53层(局部55层),其中4层 17层 32层 47层为避难层;裙房部分:北侧裙房为2层,东侧裙房为3层,地下室共三层,用作车库及设备用房;地下三层在
战时作为人防防空地下室。该项目总建筑面积134,081.38平米,建筑高度为204.45m。
该资料范围:生活给水系统、消火栓给水系统、自动喷水给水系统、自动喷水-泡沫联用灭火系统、气体灭火系统、生活排水系统、雨水系统、空调冷
凝水系统、控制与监测系统
,共计90张图纸

停机坪给排水平面图

4层给排水平面图

6-9层给排水平面图

32层(避难层)详图(一)

地下三层给排水平面图

生活排水系统图

雨水及空调冷凝水系统图

自喷给水系统图

第 1 张图
第 1 张图
第 2 张图
第 2 张图
第 3 张图
第 3 张图
第 4 张图
第 4 张图
第 5 张图
第 5 张图
第 6 张图
第 6 张图
以上是部分图纸截图,有些图框没有放大后再截图,可能截图里不清晰或者看不到内容,您可以在下载后查看具体内容

温馨提示:该资料由网友于2020-2-19 14:28:51上传分享,您可以下载该资料进行学习和参考,如有侵权内容或者违法行为,请及时联系站长删除,如有疑问,您可以在给水排水专区发帖交流相关知识。

附件2099v11edewc2csdfdsc2cs2cd.rar

8.61 MB

下载  售价: 100 积分    赚积分

相关帖子

回复

使用道具 举报

您需要登录后才可以回帖 登录 | 立即注册

本版积分规则

QQ|联系我们|豆豆网 ( 苏ICP备20004746号-1 )

GMT+8, 2025-12-24 12:52 , Processed in 0.016958 second(s), 27 queries .

本站所有内容均由网友自主分享,如有侵权内容或者违法行为,请及时联系站长删除,本站将根据实际情况进行积分奖励!请查看:免责声明

快速回复 返回顶部 返回列表