豆豆网

 找回密码
 立即注册

QQ登录

只需一步,快速开始

查看: 2462|回复: 0

一份7层商业广场综合楼强弱电CAD施工图纸(商业超市餐饮办公)

[复制链接]

0

主题

0

帖子

1736

积分

超级版主

Rank: 8Rank: 8

积分
1736
发表于 2020-2-26 20:04:48 | 显示全部楼层 |阅读模式

该帖子包含附件可供参考学习和下载,您可以 搜索 更多您想要的资源


  • 建筑类别:办公,商业,餐饮,其他
  • 建筑高度类型:高层建筑
  • 建筑设计面积:42427.6平方米
  • 建筑地上层数:9层
  • 建筑地下层数:2层
  • 图纸设计深度:施工图
  • 参考图纸:51张
  • 设计年代:近代
  • 负荷等级:一级,二级,三级
  • 防雷等级:第二类
  • 接地方式:TN-S
  • 项目所在地:广东
  • 强电设计:低压配电,电气照明,建筑物防雷,接地安全
  • 弱电设计: 火灾自动报警系统 ,有线电视和卫星接收系统,信息网络系统,其它

附件详情

  • 1、电气设计说明
  • 2、应急照明强制点亮原理图
  • 3、变配电所高低压供电示意图
  • 4、变配电所高压接线图
  • 5、电力干线系统图
  • 6、变配电所低压配电系统图(一~四)
  • 7、变配电所设备布置平面图
  • 8、变配电所接地装置平面图
  • 9、变配电所缆线布置平面图
  • 10、变配电所协作条件平南图
  • 11、配电箱系统图(一~七)
  • 12、地下一、二层电力平面图
  • 13、地下一、二层照明平面图
  • 14、一~九层电力照明平面图
  • 15、屋顶层电力照明平面图
  • 16、防雷接地平面布置图
  • 17、屋面 防雷平面图
  • 18、设计说明/消防系统图
  • 19、地下一、二层消防平面图
  • 20、一~九层消防平面图
  • 21、屋顶消防平面图
  • 22、弱电系统图
  • 23、地下一层 弱电平面图

附件详情

该项目位于广东,建筑分类:一类高层建筑,建筑的设计使用年限为50年。抗震设防烈度:7度,结构类型:框剪结构。总建筑面积42427.6平方米。建筑层数:地上9层, 地下2层,建筑高度45.75米。
设计范围包括:动力配电系统;照明配电系统;防雷及接地系统;火灾自动报警系统;电视、电话、宽带网系统。
该附件,总共51张,甲级设计院设计。


电力干线系统图

弱电系统图

消防系统图

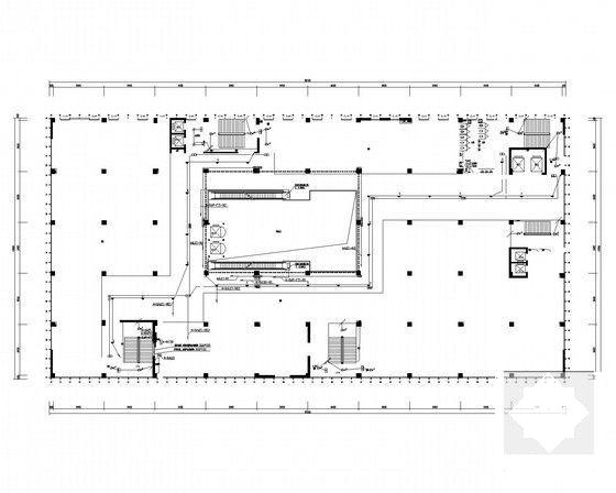
二层电力照明平面图(超市)

四~六层电力照明平面图(商业)

九层电力照明平面图(办公)

地下一层消防平面图

第 1 张图
第 1 张图
第 2 张图
第 2 张图
第 3 张图
第 3 张图
第 4 张图
第 4 张图
第 5 张图
第 5 张图
第 6 张图
第 6 张图
第 7 张图
第 7 张图
以上是部分图纸截图,有些图框没有放大后再截图,可能截图里不清晰或者看不到内容,您可以在下载后查看具体内容

温馨提示:该资料由网友于2020-2-26 20:04:48上传分享,您可以下载该资料进行学习和参考,如有侵权内容或者违法行为,请及时联系站长删除,如有疑问,您可以在商业建筑专区发帖交流相关知识。

附件2099v11edeewwe12ssesfss210.rar

7.37 MB

下载  售价: 100 积分    赚积分

相关帖子

回复

使用道具 举报

您需要登录后才可以回帖 登录 | 立即注册

本版积分规则

QQ|联系我们|豆豆网 ( 苏ICP备20004746号-1 )

GMT+8, 2025-12-20 07:26 , Processed in 0.017329 second(s), 27 queries .

本站所有内容均由网友自主分享,如有侵权内容或者违法行为,请及时联系站长删除,本站将根据实际情况进行积分奖励!请查看:免责声明

快速回复 返回顶部 返回列表