豆豆网

 找回密码
 立即注册

QQ登录

只需一步,快速开始

查看: 1918|回复: 0

22层住宅楼给排水CAD施工图纸

[复制链接]

0

主题

0

帖子

1350

积分

超级版主

Rank: 8Rank: 8

积分
1350
发表于 2020-2-17 23:16:50 | 显示全部楼层 |阅读模式

该帖子包含附件可供参考学习和下载,您可以 搜索 更多您想要的资源


  • 附件设计说明:有
  • 建筑类别:住宅
  • 建筑高度类型:高层建筑
  • 建筑地上层数:22层
  • 建筑地下层数:1层
  • 图纸设计深度:施工图
  • 参考图纸:20张
  • 设计年代:近代
  • 生活供水设计:生活给水系统
  • 排水设计:污水系统,废水系统,雨水系统
  • 消防设计:室内消火栓系统,喷淋系统
  • 供水设备:高位水箱
  • 供水方式:市政供水,分区供水,高位水箱供水
  • 供水分区:三区
  • 消火栓用水量室内(L/S):20
  • 大样节点:水箱,设备房布置

附件详情

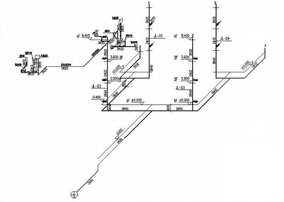
设计范围为:室内给排水及消防设计。该资料包含:地下给排水消防平面,夹层给排水消防平面,给排水消防平面 ,排水管道系统图,雨水管道系统图,消防自喷管道系统图,给水管道系统图,消防排水泵大样图等。

第 1 张图
第 1 张图
第 2 张图
第 2 张图
第 3 张图
第 3 张图
第 4 张图
第 4 张图
以上是部分图纸截图,有些图框没有放大后再截图,可能截图里不清晰或者看不到内容,您可以在下载后查看具体内容

温馨提示:该资料由网友于2020-2-17 23:16:50上传分享,您可以下载该资料进行学习和参考,如有侵权内容或者违法行为,请及时联系站长删除,如有疑问,您可以在给水排水专区发帖交流相关知识。

附件2099v11edc0c0cf1s11dcsfcse.rar

790.32 KB

下载  售价: 100 积分    赚积分

相关帖子

回复

使用道具 举报

您需要登录后才可以回帖 登录 | 立即注册

本版积分规则

QQ|联系我们|豆豆网 ( 苏ICP备20004746号-1 )

GMT+8, 2025-11-26 12:31 , Processed in 0.016350 second(s), 27 queries .

本站所有内容均由网友自主分享,如有侵权内容或者违法行为,请及时联系站长删除,本站将根据实际情况进行积分奖励!请查看:免责声明

快速回复 返回顶部 返回列表