豆豆网

 找回密码
 立即注册

QQ登录

只需一步,快速开始

查看: 2500|回复: 0

一份3.9万平25层商住建筑给排水CAD施工图纸

[复制链接]

0

主题

0

帖子

1596

积分

超级版主

Rank: 8Rank: 8

积分
1596
发表于 2020-2-18 20:19:32 | 显示全部楼层 |阅读模式

该帖子包含附件可供参考学习和下载,您可以 搜索 更多您想要的资源


  • 附件设计说明:有
  • 建筑类别:住宅,商业
  • 建筑高度类型:高层建筑
  • 建筑设计结构形式:其他结构
  • 建筑设计面积:39000平方米
  • 建筑地上层数:25层
  • 建筑地下层数:1层
  • 图纸设计深度:施工图
  • 参考图纸:16张
  • 设计年代:近代
  • 生产供水设计:热水系统
  • 排水设计:污水系统,废水系统,雨水系统
  • 消防设计:室外消火栓系统,室内消火栓系统
  • 供水设备:高位水箱,水泵站
  • 供水方式:市政供水,变频供水,分区供水,高位水箱供水
  • 供水分区:三区
  • 排水体制:污废合流,雨污分流
  • 排水技术:重力排水
  • 火灾危险等级:中危险级Ⅰ级
  • 消火栓用水量室外(L/S):25
  • 消火栓用水量室内(L/S):20
  • 大样节点:水箱,水泵,泵房,卫生间
  • 项目所在地:山西

附件详情

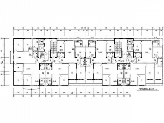
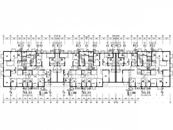
  • 地下室消防平面图
  • 地下室给、排水平面图
  • 一层给排水、消防平面图
  • 二层给排水、消防平面图
  • 三至六层给排水、消防平面图
  • 七至十七层给排水、消防平面图
  • 十八至二十四层给排水、消防平面图
  • 二十五层给排水、消防平面图
  • 屋面层给排水、消防平面图
  • 户型单元标准层给水、排水大样图
  • 排水管道轴测图
  • 冷、热水管道轴测图
  • 给水管道原理图(一)
  • 给水管道原理图(二)
  • 排水管道原理图(一)
  • 排水管道原理图(二)
  • 消防管道原理图

附件详情

该项目位于山西,地下一层为储藏室,地上一层为商店,2-25层为住宅,建筑高度为76.1米,建筑面积为39000平米,三单元,住宅总套数为280多套,商铺6个,该项目建筑建筑设计结构形式为框架剪力墙结构,属于一类普通高层住宅建筑。
该项目设计范围:给水系统、排水系统、消防给水系统、热水系统等;
,共计16张图纸;

户型单元标准层给水、排水大样图

水箱间剖面图

管道轴测图

消防管道原理图

给水管道原理图

第 1 张图
第 1 张图
第 2 张图
第 2 张图
第 3 张图
第 3 张图
第 4 张图
第 4 张图
第 5 张图
第 5 张图
第 6 张图
第 6 张图
以上是部分图纸截图,有些图框没有放大后再截图,可能截图里不清晰或者看不到内容,您可以在下载后查看具体内容

温馨提示:该资料由网友于2020-2-18 20:19:32上传分享,您可以下载该资料进行学习和参考,如有侵权内容或者违法行为,请及时联系站长删除,如有疑问,您可以在给水排水专区发帖交流相关知识。

附件2099v11edc0s1ew0ee1sc0se1e.rar

1.12 MB

下载  售价: 100 积分    赚积分

相关帖子

回复

使用道具 举报

您需要登录后才可以回帖 登录 | 立即注册

本版积分规则

QQ|联系我们|豆豆网 ( 苏ICP备20004746号-1 )

GMT+8, 2025-12-24 01:09 , Processed in 0.016307 second(s), 27 queries .

本站所有内容均由网友自主分享,如有侵权内容或者违法行为,请及时联系站长删除,本站将根据实际情况进行积分奖励!请查看:免责声明

快速回复 返回顶部 返回列表