豆豆网

 找回密码
 立即注册

QQ登录

只需一步,快速开始

查看: 3212|回复: 0

一份23层商业大厦空调通风设计CAD施工图纸

[复制链接]

0

主题

0

帖子

1075

积分

超级版主

Rank: 8Rank: 8

积分
1075
发表于 2020-2-25 21:54:42 | 显示全部楼层 |阅读模式

该帖子包含附件可供参考学习和下载,您可以 搜索 更多您想要的资源


  • 附件设计说明:有
  • 建筑类别:办公,商业,酒店
  • 建筑高度类型:高层建筑
  • 建筑设计面积:61000平方米
  • 建筑地上层数:23层
  • 图纸设计深度:施工图
  • 参考图纸:19张
  • 设计年代:近代
  • 设计内容:空调,通风,冷热源,机房
  • 冷热源:电动压缩式冷水机组
  • 空调系统:全空气系统,制冷剂系统
  • 送风方式:散流器送风,其他
  • 节点大样:冷却塔,空气处理机组
  • 项目所在地:广东

附件详情

  • 空调设计施工总说明
  • 图例及设备材料表
  • 组合风柜组合、接管示意图
  • 空调水系统原理图
  • 制冷系统原理图
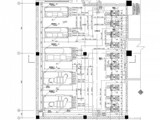
  • 空调平面图
  • 冷却塔管道布置大样图
  • 冷水机房管道布置大样图
  • 空调机房大样图

附件详情

稿件为广州某商业综合楼空调通风设计施工图纸;该项目总建筑面积61000m2,集中空调面积50000m2。一~六层商场为一个独立空调系统。采用落地风柜全空气系统。七~九层餐饮、酒廊为一个独立空调系统,采用风机盘管式空气-水系统,此次设计只在各层预留冷冻水管接口。十~二十三层为商务办公区,每层设两个独立空调系统。采用VRV一托多变频直冷式中央空调系统。预留室外机和新风机组位置……

,图纸共19张。

制冷系统原理图

冷水机房管道布置大样图

风管布置大样

冷却塔管路面布置大样图

空调机房大样图

空调机房剖面

空调水系统原理图

十层空调平面图

第 1 张图
第 1 张图
第 2 张图
第 2 张图
第 3 张图
第 3 张图
第 4 张图
第 4 张图
第 5 张图
第 5 张图
第 6 张图
第 6 张图
以上是部分图纸截图,有些图框没有放大后再截图,可能截图里不清晰或者看不到内容,您可以在下载后查看具体内容

温馨提示:该资料由网友于2020-2-25 21:54:42上传分享,您可以下载该资料进行学习和参考,如有侵权内容或者违法行为,请及时联系站长删除,如有疑问,您可以在商业建筑专区发帖交流相关知识。

附件2099v11ede2esc0fddwedce022.rar

8.92 MB

下载  售价: 100 积分    赚积分

相关帖子

回复

使用道具 举报

您需要登录后才可以回帖 登录 | 立即注册

本版积分规则

QQ|联系我们|豆豆网 ( 苏ICP备20004746号-1 )

GMT+8, 2025-12-28 20:59 , Processed in 0.015450 second(s), 28 queries .

本站所有内容均由网友自主分享,如有侵权内容或者违法行为,请及时联系站长删除,本站将根据实际情况进行积分奖励!请查看:免责声明

快速回复 返回顶部 返回列表