豆豆网

 找回密码
 立即注册

QQ登录

只需一步,快速开始

查看: 3292|回复: 0

一份22层商务大厦空调通风设计CAD施工图纸(知名院)

[复制链接]

0

主题

0

帖子

1359

积分

超级版主

Rank: 8Rank: 8

积分
1359
发表于 2020-2-16 21:43:59 | 显示全部楼层 |阅读模式

该帖子包含附件可供参考学习和下载,您可以 搜索 更多您想要的资源


  • 附件设计说明:无
  • 建筑类别:办公,商业,宾馆,酒店,其他
  • 建筑高度类型:高层建筑
  • 建筑设计面积:80000平方米
  • 建筑地上层数:22层
  • 建筑地下层数:1层
  • 图纸设计深度:施工图
  • 参考图纸:32张
  • 设计年代:近代
  • 设计内容:空调,通风,防排烟,冷热源,机房
  • 冷热源:电动压缩式冷水机组
  • 空调系统:全空气系统,空气-水系统
  • 项目所在地:天津

附件详情

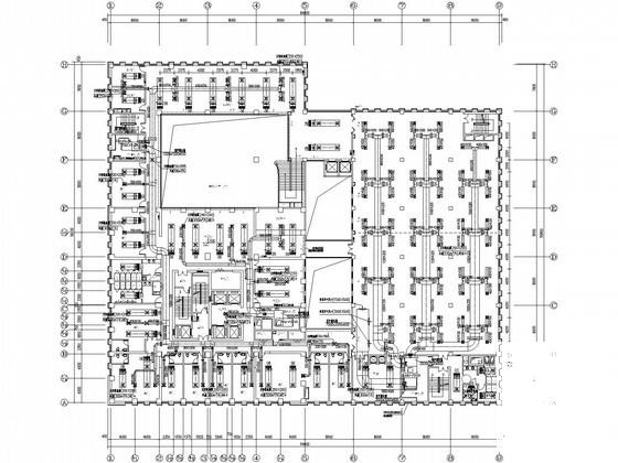
  • 空调通风平面图
  • 空调水系统平面图
  • 排风排烟平面图
  • 机房层通风平面图
  • 制冷机房水系统平面图
  • 机房 平面布置图
  • 制冷机房水系统图
  • 空调水系统立管图
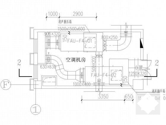
  • 空调机房平、剖面图

附件详情

稿件为天津某商务大厦空调通风设计施工图纸,由国内某知名设计院设计。大厦总地上建筑面积为80000平方米,地下1层,地上22层,其中地上1~2层为商业用房,3层为会所,4层为商务中心、会议中心,5层为交易中心,6层为金融中心、结算中心,7层~9层为酒店式公寓,10层~22层为大开间办公用房。
设计内容:该大厦的空调、通风、防排烟系统设计,包含制冷机房及空调机房设计。

,图纸共32张(缺少设计说明)。

制冷机房水系统投影图

制冷机房水系统平面图

空调机房平面图

空调水系统立管图

塔楼空调水系统平面图

机房层设备平面图

空调机房详图

二层空调水系统平面图大样

空调通风布置大样

第 1 张图
第 1 张图
第 2 张图
第 2 张图
第 3 张图
第 3 张图
第 4 张图
第 4 张图
第 5 张图
第 5 张图
第 6 张图
第 6 张图
以上是部分图纸截图,有些图框没有放大后再截图,可能截图里不清晰或者看不到内容,您可以在下载后查看具体内容

温馨提示:该资料由网友于2020-2-16 21:43:59上传分享,您可以下载该资料进行学习和参考,如有侵权内容或者违法行为,请及时联系站长删除,如有疑问,您可以在商业建筑专区发帖交流相关知识。

附件2099v11ede2e1c2cc0sssdced1.rar

8.68 MB

下载  售价: 100 积分    赚积分

相关帖子

回复

使用道具 举报

您需要登录后才可以回帖 登录 | 立即注册

本版积分规则

QQ|联系我们|豆豆网 ( 苏ICP备20004746号-1 )

GMT+8, 2025-12-31 13:02 , Processed in 0.019081 second(s), 27 queries .

本站所有内容均由网友自主分享,如有侵权内容或者违法行为,请及时联系站长删除,本站将根据实际情况进行积分奖励!请查看:免责声明

快速回复 返回顶部 返回列表