豆豆网

 找回密码
 立即注册

QQ登录

只需一步,快速开始

查看: 2673|回复: 0

一份4层商业综合楼空调通风系统设计CAD施工图纸(风冷模块机组)

[复制链接]

0

主题

0

帖子

1832

积分

超级版主

Rank: 8Rank: 8

积分
1832
发表于 2020-2-26 10:03:00 | 显示全部楼层 |阅读模式

该帖子包含附件可供参考学习和下载,您可以 搜索 更多您想要的资源


  • 附件设计说明:有
  • 建筑类别:商业,娱乐
  • 建筑高度类型:多层建筑
  • 建筑地上层数:4层
  • 建筑地下层数:1层
  • 图纸设计深度:施工图
  • 设计内容:空调,通风,冷热源
  • 冷热源:市政热网,电动压缩式冷水机组
  • 空调系统:全空气系统
  • 采暖系统:散热器供暖
  • 全空气系统:变风量
  • 水系统:双管制,异程式
  • 送风方式:散流器送风
  • 节点大样:风机盘管,制冷机组

附件详情

一、项目概要:
该项目为某商业综合楼,地下一层,地上四层。
二、空调系统:

1.冷热源:空调制冷系统选用螺杆式,风冷机组和风冷模块机组,还有多联机系统。

2.风系统: 采用吊顶式全空气系统。

3.水系统:采用双管制竖向异程管网系统...

三、通风系统:

公共卫生间设机械排风系统,采用经过门缝或门上百叶风口自然补风系统...


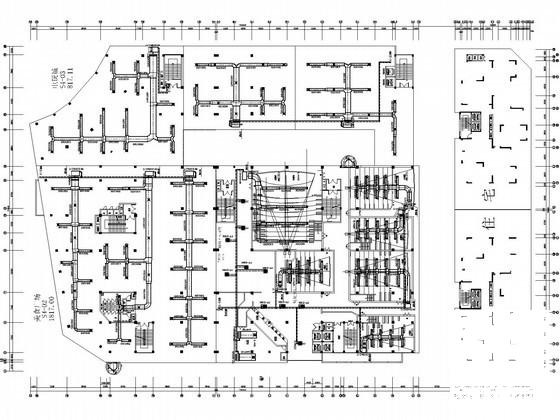
二层空调平面图

三层空调平面图

四层空调平面图

风冷模块机组 - 1
第 1 张图
风冷模块机组 - 2
第 2 张图
风冷模块机组 - 3
第 3 张图
风冷模块机组 - 4
第 4 张图
以上是部分图纸截图,有些图框没有放大后再截图,可能截图里不清晰或者看不到内容,您可以在下载后查看具体内容

温馨提示:该资料由网友于2020-2-26 10:03:00上传分享,您可以下载该资料进行学习和参考,如有侵权内容或者违法行为,请及时联系站长删除,如有疑问,您可以在商业建筑专区发帖交流相关知识。

附件2099v11ede2scew1s2wded1100.rar

1.98 MB

下载  售价: 100 积分    赚积分

风冷模块机组相关帖子

回复

使用道具 举报

您需要登录后才可以回帖 登录 | 立即注册

本版积分规则

QQ|联系我们|豆豆网 ( 苏ICP备20004746号-1 )

GMT+8, 2025-12-30 00:32 , Processed in 0.015222 second(s), 28 queries .

本站所有内容均由网友自主分享,如有侵权内容或者违法行为,请及时联系站长删除,本站将根据实际情况进行积分奖励!请查看:免责声明

快速回复 返回顶部 返回列表