豆豆网

 找回密码
 立即注册

QQ登录

只需一步,快速开始

查看: 2287|回复: 0

一份42层办公楼空调通风系统设计CAD施工图纸(多联式空调系统)

[复制链接]

0

主题

0

帖子

776

积分

超级版主

Rank: 8Rank: 8

积分
776
发表于 2020-2-27 21:09:48 | 显示全部楼层 |阅读模式

该帖子包含附件可供参考学习和下载,您可以 搜索 更多您想要的资源


  • 附件设计说明:有
  • 建筑类别:办公
  • 建筑高度类型:超高层建筑
  • 建筑设计面积:23400平方米
  • 建筑地上层数:42层
  • 建筑地下层数:1层
  • 参考图纸:13张
  • 设计内容:空调,通风
  • 冷热源:空气调节器
  • 空调系统:制冷剂系统
  • 采暖系统:散热器供暖
  • 送风方式:散流器送风
  • 节点大样:空气处理机组
  • 项目所在地:山东

附件详情

一、项目概要:

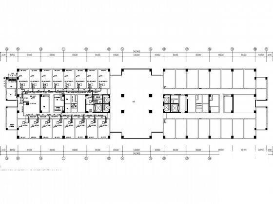
该项目为济南以一办公楼空调工程,建筑面积23400平方米。本建筑地下1层,地上42层,建筑高度 154.3米,1至5层为裙房,6-20层、22-42层均为标准层,21层为避难层;房间主要功能有办公室、休息室、电梯前室等。图纸内容包含设计施工说明、设备材料表、空调平面图、空调配管平面图、室外机布置平面图、室外机安装大样图等...

二、空调系统:

(1)空调室外机的布置:该资料6至16层的室外机设置于每层的库房内;17至20层及22至29层的室外机均置于21层避难层内,室外机沿着外墙布置,留有足够的进风排风面积,能保证通风散热效果。30层到42层的室外机均布置在主楼屋顶上,统一排布,通风散热效果良好,不影响整个建筑物的立面效果。
(2)办公室和电梯前室采用天花板内置风管式室内机,设置于房间的吊顶内,采用顶送顶回的空调方式送风口选用方形散流器,回风口选用可开式单层百叶风口。
(3)各层的休息区采用四面出风嵌入式室内机,可以很灵活、方便地配合吊顶的装潢, 美观、大方.
(4) 每层采用一台KPI全热交换器作为新风机,通过室内外双向换气,空调的能量从排风中回收到新风中, 既高效节能,又保证了各房间的新风量...


标准层空调配管平面图

室内机安装大样图

室外机布置平面图

多联式空调系统 - 1
第 1 张图
多联式空调系统 - 2
第 2 张图
多联式空调系统 - 3
第 3 张图
多联式空调系统 - 4
第 4 张图
以上是部分图纸截图,有些图框没有放大后再截图,可能截图里不清晰或者看不到内容,您可以在下载后查看具体内容

温馨提示:该资料由网友于2020-2-27 21:09:48上传分享,您可以下载该资料进行学习和参考,如有侵权内容或者违法行为,请及时联系站长删除,如有疑问,您可以在暖通空调专区发帖交流相关知识。

附件2099v11ede2se0d120f00cefc1.rar

649.71 KB

下载  售价: 100 积分    赚积分

多联式空调系统相关帖子

回复

使用道具 举报

您需要登录后才可以回帖 登录 | 立即注册

本版积分规则

QQ|联系我们|豆豆网 ( 苏ICP备20004746号-1 )

GMT+8, 2025-12-17 01:08 , Processed in 0.019166 second(s), 27 queries .

本站所有内容均由网友自主分享,如有侵权内容或者违法行为,请及时联系站长删除,本站将根据实际情况进行积分奖励!请查看:免责声明

快速回复 返回顶部 返回列表