豆豆网

 找回密码
 立即注册

QQ登录

只需一步,快速开始

查看: 1358|回复: 0

高层住宅楼建筑采暖通风系统设计CAD施工图纸(大院设计)

[复制链接]

0

主题

0

帖子

1084

积分

超级版主

Rank: 8Rank: 8

积分
1084
发表于 2020-2-29 09:40:28 | 显示全部楼层 |阅读模式

该帖子包含附件可供参考学习和下载,您可以 搜索 更多您想要的资源


  • 附件设计说明:有
  • 建筑类别:住宅
  • 建筑高度类型:多层建筑
  • 建筑设计面积:11931.06平方米
  • 建筑地上层数:33层
  • 图纸设计深度:施工图
  • 参考图纸:9张
  • 设计年代:近代
  • 设计内容:通风,采暖,冷热源
  • 冷热源:市政热网
  • 采暖系统:热水辐射
  • 送风方式:散流器送风
  • 项目所在地:天津

附件详情

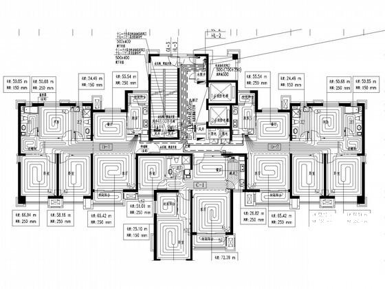
一、项目概要:

该项目位于天津市,是一个高层住宅建筑,地上33层,建筑面积11931.06平方米。图纸内容包含设计及施工说明,主要设备材料表及图例,采暖、防排烟平面图,采暖系统图,防排烟系统图等...

二、采暖系统:

由小区换热站供给,该项目采暖系统为共用立管的分户独立系统,共33层,分为高中低三个区;住宅内客厅、卧室、餐厅、卫生间、厨房均采用地面辐射供暖方式...


二层采暖、防排烟平面图

三~十一层采暖、防排烟平面图

十二~二十二层采暖、防排烟平面图

第 1 张图
第 1 张图
第 2 张图
第 2 张图
第 3 张图
第 3 张图
第 4 张图
第 4 张图
以上是部分图纸截图,有些图框没有放大后再截图,可能截图里不清晰或者看不到内容,您可以在下载后查看具体内容

温馨提示:该资料由网友于2020-2-29 09:40:28上传分享,您可以下载该资料进行学习和参考,如有侵权内容或者违法行为,请及时联系站长删除,如有疑问,您可以在居住建筑专区发帖交流相关知识。

附件2099v11edecwswcs2cw2cs0f2s.rar

1020.17 KB

下载  售价: 100 积分    赚积分

相关帖子

回复

使用道具 举报

您需要登录后才可以回帖 登录 | 立即注册

本版积分规则

QQ|联系我们|豆豆网 ( 苏ICP备20004746号-1 )

GMT+8, 2025-11-18 19:25 , Processed in 0.017454 second(s), 28 queries .

本站所有内容均由网友自主分享,如有侵权内容或者违法行为,请及时联系站长删除,本站将根据实际情况进行积分奖励!请查看:免责声明

快速回复 返回顶部 返回列表