豆豆网

 找回密码
 立即注册

QQ登录

只需一步,快速开始

查看: 1799|回复: 0

住宅小区暖通空调设计CAD施工图纸(甲级设计院)

[复制链接]

0

主题

0

帖子

1577

积分

超级版主

Rank: 8Rank: 8

积分
1577
发表于 2020-2-29 13:24:49 | 显示全部楼层 |阅读模式

该帖子包含附件可供参考学习和下载,您可以 搜索 更多您想要的资源


  • 附件设计说明:有
  • 建筑类别:住宅,商业
  • 建筑高度类型:高层建筑
  • 建筑地上层数:11~24层
  • 建筑地下层数:2层
  • 图纸设计深度:施工图
  • 参考图纸:66张
  • 设计年代:近代
  • 设计内容:空调,通风,采暖,防排烟,机房,人防
  • 冷热源:市政热网,空气调节器
  • 空调系统:制冷剂系统
  • 采暖系统:热水辐射
  • 节点大样:集分水器
  • 项目所在地:河北
附件详情
  • 采暖工程设计施工说明
  • 空调工程设计施工说明
  • 战时风平面图
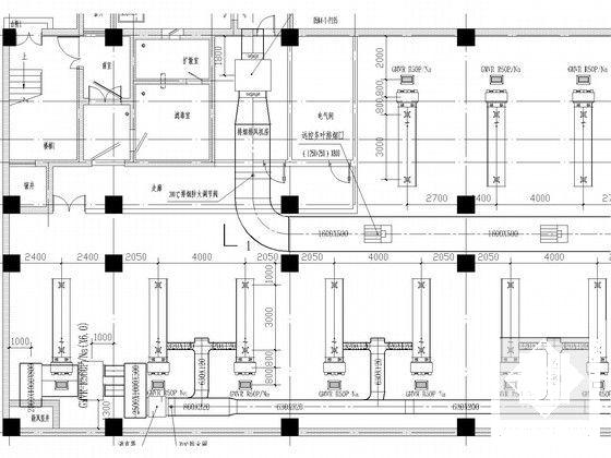
  • 空调与通风布置平面图
  • 采暖管道平面图
  • 采暖盘管平面图
  • 屋顶通风平面图
  • 采暖系统图
  • 加压送风系统图
  • 管井大样图
  • 采暖节点详图
  • 地下室热力管道平面
附件详情
稿件为河北衡水某高层住宅小区暖通空调设计施工图纸,包括地下室人防通风设计。小区共5栋高层建筑,地下2层,地上11~24层。
该资料共包括5栋高层建筑及地下室的采暖通风设计,人防通风设计,以及1#综合楼的多联空调系统设计。

,图纸共66张。
河北住宅小区全套暖通空调设计施工
采暖系统图
采暖系统节点详图
空调通风大样
采暖管布置大样
分集水器大样图
管井大样图
人防口部大样
通风机房剖面
人员掩蔽战时送、排风原理图
空调及通风平面图
5#暖
2#暖
暖通空调设计院 - 1
第 1 张图
暖通空调设计院 - 2
第 2 张图
暖通空调设计院 - 3
第 3 张图
暖通空调设计院 - 4
第 4 张图
暖通空调设计院 - 5
第 5 张图
暖通空调设计院 - 6
第 6 张图
以上是部分图纸截图,有些图框没有放大后再截图,可能截图里不清晰或者看不到内容,您可以在下载后查看具体内容

温馨提示:该资料由网友于2020-2-29 13:24:49上传分享,您可以下载该资料进行学习和参考,如有侵权内容或者违法行为,请及时联系站长删除,如有疑问,您可以在居住建筑专区发帖交流相关知识。

附件2099v11edecc1fs1dcscfc10c0.rar

8.43 MB

下载  售价: 100 积分    赚积分

暖通空调设计院相关帖子

回复

使用道具 举报

您需要登录后才可以回帖 登录 | 立即注册

本版积分规则

QQ|联系我们|豆豆网 ( 苏ICP备20004746号-1 )

GMT+8, 2025-12-18 21:47 , Processed in 0.016503 second(s), 27 queries .

本站所有内容均由网友自主分享,如有侵权内容或者违法行为,请及时联系站长删除,本站将根据实际情况进行积分奖励!请查看:免责声明

快速回复 返回顶部 返回列表