豆豆网

 找回密码
 立即注册

QQ登录

只需一步,快速开始

查看: 1374|回复: 0

34层高层住宅楼暖通空调CAD施工图纸

[复制链接]

0

主题

0

帖子

1470

积分

超级版主

Rank: 8Rank: 8

积分
1470
发表于 2020-2-29 20:32:26 | 显示全部楼层 |阅读模式

该帖子包含附件可供参考学习和下载,您可以 搜索 更多您想要的资源


  • 附件设计说明:有
  • 建筑类别:住宅
  • 建筑高度类型:高层建筑
  • 建筑设计面积:33863.22平方米
  • 建筑地上层数:34层
  • 建筑地下层数:2层
  • 图纸设计深度:施工图
  • 参考图纸:16张
  • 设计内容:通风,采暖
  • 采暖系统:散热器供暖
  • 项目所在地:河南

附件详情

  • 设计施工说明、图例、材料表
  • 地下二层通风平面图
  • 地下一层采暖管道通风平面图
  • 采暖通风平面图
  • 暖井布置平面图、剖面图
  • 户内系统图、安装详图
  • 采暖立管图、系统图
  • 防烟系统原理图

附件详情

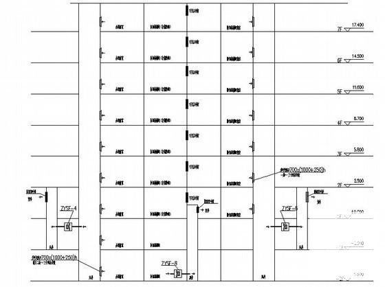
本建筑地下2层,地上34层,地下一至二层为戊类储藏间地上各层为单元式住宅。总建筑面积33863.22平方米,建筑高度99.05m,为一类高层,耐火等级地上一级,地下一级;设计包括住宅部分采暖分户热计量设计,正压送风系统设计,屋面电梯机房的通风设计.
图纸共16张

防烟系统原理图

系统采暖立管图

户内采暖系统图

热力入口详图

住宅楼暖通空调 - 1
第 1 张图
住宅楼暖通空调 - 2
第 2 张图
住宅楼暖通空调 - 3
第 3 张图
住宅楼暖通空调 - 4
第 4 张图
住宅楼暖通空调 - 5
第 5 张图
以上是部分图纸截图,有些图框没有放大后再截图,可能截图里不清晰或者看不到内容,您可以在下载后查看具体内容

温馨提示:该资料由网友于2020-2-29 20:32:26上传分享,您可以下载该资料进行学习和参考,如有侵权内容或者违法行为,请及时联系站长删除,如有疑问,您可以在居住建筑专区发帖交流相关知识。

附件2099v11ede2c1sscd12eec1sc0.rar

1.66 MB

下载  售价: 100 积分    赚积分

住宅楼暖通空调相关帖子

回复

使用道具 举报

您需要登录后才可以回帖 登录 | 立即注册

本版积分规则

QQ|联系我们|豆豆网 ( 苏ICP备20004746号-1 )

GMT+8, 2025-12-29 02:34 , Processed in 0.018970 second(s), 27 queries .

本站所有内容均由网友自主分享,如有侵权内容或者违法行为,请及时联系站长删除,本站将根据实际情况进行积分奖励!请查看:免责声明

快速回复 返回顶部 返回列表