豆豆网

 找回密码
 立即注册

QQ登录

只需一步,快速开始

查看: 2985|回复: 0

2层游泳馆建筑暖通空调及通风排烟设计CAD施工图纸

[复制链接]

0

主题

0

帖子

1596

积分

超级版主

Rank: 8Rank: 8

积分
1596
发表于 2020-2-29 21:24:19 | 显示全部楼层 |阅读模式

该帖子包含附件可供参考学习和下载,您可以 搜索 更多您想要的资源


  • 附件设计说明:有
  • 建筑类别:娱乐,体育
  • 建筑高度类型:多层建筑
  • 建筑设计面积:5467平方米
  • 建筑地上层数:2层
  • 建筑地下层数:1层
  • 图纸设计深度:施工图
  • 参考图纸:77张
  • 设计内容:空调,通风,采暖,防排烟,冷热源
  • 冷热源:电动压缩式冷水机组
  • 空调系统:全空气系统,制冷剂系统
  • 采暖系统:散热器供暖,热水辐射
  • 送风方式:散流器送风
  • 项目所在地:上海

附件详情

  • 设计施工说明
  • 图例
  • 空调采暖水系统流程图
  • 空调通风系统 平面布置图
  • 空调风管平面图
  • 空调通风系统剖面详图
  • 采暖平面图
  • ......

附件详情

一、项目概要:
工程为大学游泳馆,总建筑面积约5467m2(地上3942m2,地下1525m2),地上两层。地下一层,包括集中地板辐射供暖及集中空调设计、通风设计......
二、冷热源:
采用2台制热量为690kw的风冷热水机组及1台制热量为690kw,制冷量为660kw风冷热泵机组。热水机组用于游泳池水加热,热泵机组用于空调作为空调用冷热源......
三、空调系统:
1.游泳馆采用全空气空调系统。共选用4台空调机组,两台送风量26000m3/h,设置于屋顶;两台送风量22000m3/h,设置于地下室。
2.对游泳馆的更衣室、贵宾接待室、广播救生室、健身房及办公室设置分体空调......
四、采暖系统:
对泳池区设置集中地板辐射供暖,设置11组分集水器,系统热负荷150kW......
五、通风排烟系统:
1.游泳馆设置机械通风系统,通风量分别为24000m/h及8000m/h。
2.男女沐浴更衣间设置机械排风系统,通风量分别为4000m/h及3000m/h。
3.卫生间设置机械排风系统,通风量分别为500m/h及800m/h......

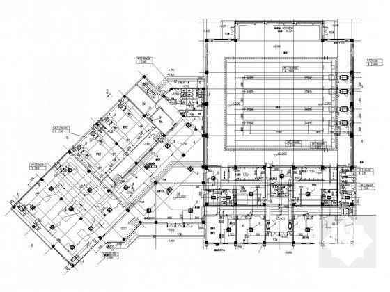
图纸共77张。

空调采暖水系统流程图

空调机房K-1平剖面详图

风管平面图

空调通风系统剖面详图

风管平面图

建筑暖通空调施工图 - 1
第 1 张图
建筑暖通空调施工图 - 2
第 2 张图
建筑暖通空调施工图 - 3
第 3 张图
建筑暖通空调施工图 - 4
第 4 张图
建筑暖通空调施工图 - 5
第 5 张图
建筑暖通空调施工图 - 6
第 6 张图
以上是部分图纸截图,有些图框没有放大后再截图,可能截图里不清晰或者看不到内容,您可以在下载后查看具体内容

温馨提示:该资料由网友于2020-2-29 21:24:19上传分享,您可以下载该资料进行学习和参考,如有侵权内容或者违法行为,请及时联系站长删除,如有疑问,您可以在暖通空调专区发帖交流相关知识。

附件2099v11edec22wf1cdff00ecsd.rar

7.85 MB

下载  售价: 100 积分    赚积分

建筑暖通空调施工图相关帖子

回复

使用道具 举报

您需要登录后才可以回帖 登录 | 立即注册

本版积分规则

QQ|联系我们|豆豆网 ( 苏ICP备20004746号-1 )

GMT+8, 2025-12-28 00:50 , Processed in 0.018507 second(s), 27 queries .

本站所有内容均由网友自主分享,如有侵权内容或者违法行为,请及时联系站长删除,本站将根据实际情况进行积分奖励!请查看:免责声明

快速回复 返回顶部 返回列表