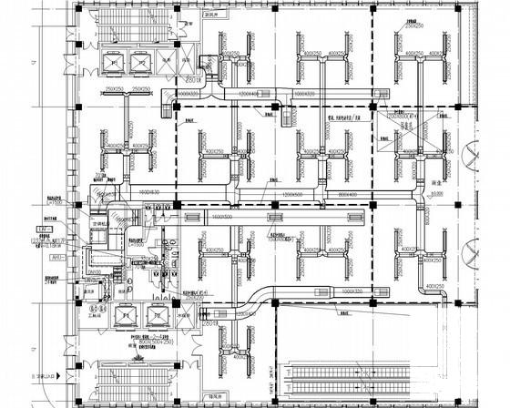
4层商场及车库空调防排烟系统设计施工CAD大样图
- 发布时间:2021-05-14
- 评论次数:0
- 浏览次数:0
- 文件大小:2.18 MB
- 收藏次数:0
-
文件名称:
附件-995858875970957856798.rar
商场空调系统设计下载
- 6351平米4层商场及车库空调防排烟系统设计施工CAD大样图
- 15层厂房及配套设施通风空调防排烟系统设计施工CAD图纸
- 地下商场通风空调及防排烟系统设计施工CAD大样图
- 3层购物商场空调及防排烟系统设计施工CAD大样图
- 15层商场及地下车库空调通风设计施工CAD大样图
- 地下车库通风及防排烟系统设计施工CAD大样图
- 13954平米5层购物商场空调通风及防排烟系统设计施工CAD大样图
- 15层商场及地下车库空调通风设计CAD施工大样图(散流器送风)(dwg)
- 地下车库及水泵房通风防排烟系统设计施工CAD大样图
- 多层商场空调通风及防排烟系统设计CAD施工图纸.dwg
- 大型商场综合建筑空调及通风排烟系统设计施工CAD图纸
- 地下车库人防通风排烟系统设计施工CAD大样图
- 大型农贸市场暖通空调防排烟系统CAD施工图纸设计(节能设计)
- 大型农贸市场暖通空调防排烟系统CAD施工图纸设计(节能设计)(dwg)
- 商场及地下车库配电干线CAD图纸(dwg)
- [CAD施工图]四星级酒店中央空设计(机械排烟系统)
- 学校多栋形式建筑通风空调防排烟系统设计CAD施工图纸(甲级资质)(dwg)
- 厂房配套设施通风空调防排烟系统设计施工图CAD平面图
- 通风与空调防排烟系统验收记录20P.pdf
- 通风与空调防排烟系统验收记录20P.pdf
全部评论
评论网友评论仅友表达个人看法,并不表明本站同意其观点,不得发布违反法律法规的内容!
