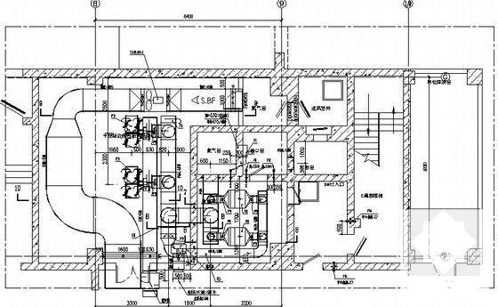
17100平米5层学校实验中心空调通风设计施工CAD大样图
- 发布时间:2021-04-29
- 评论次数:0
- 浏览次数:0
- 文件大小:4.41 MB
- 收藏次数:0
- 
								文件名称: 附件-995858779089959799599.rar 附件-995858779089959799599.rar
								学校施工设计下载
							
						- 5层学校实验中心空调通风设计CAD施工大样图(dwg)
- 23层实验中心大厦空调通风及防排烟系统设计施工CAD图纸
- 高层实验中心大厦空调通风及防排烟系统设计施工CAD图纸
- 3400平米多层实验科研建筑空调通风系统设计施工CAD大样图
- 4层学校宿舍楼空调通风设计CAD施工大样图(dwg)
- 多层实验科研建筑空调通风系统设计CAD施工大样图(净化空调)(dwg)
- 某学校会议中心改造通风空调系统设计cad平面图
- 省级疾控中心实验室暧通全面施工CAD大样图(舒适性空调设计、防排烟设计、通风设计)(dwg)
- [CAD]交易中心空调设计大样图(空调通风防排烟).dwg
- 医院实验室空调通风CAD施工图纸
- 医院中心血站实验室空调通风及防排烟系统设计施工CAD图纸
- 2层游客中心空调通风设计施工CAD大样图
- 8718平米2层游客中心空调通风设计施工CAD大样图
- 6770平米4层科研中心空调通风设计施工CAD大样图
- 2层生活购物中心空调通风设计施工CAD大样图
- 2层物流中心空调通风设计施工CAD大样图
- 5层大学科研中心空调通风设计施工CAD大样图
- 多层行政中心空调通风系统设计施工CAD大样图
- 实验学校道路建设工程大样图cad
- 16层研发中心空调通风设计施工CAD图纸
全部评论
						
							评论网友评论仅友表达个人看法,并不表明本站同意其观点,不得发布违反法律法规的内容!
						
						
 
	              	 
	              	 
	              	 
	              	