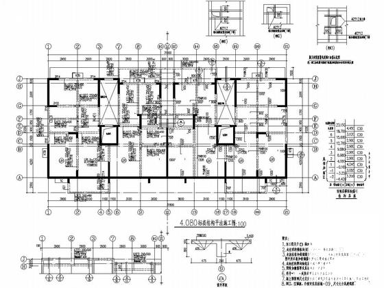
3600平6层带底商剪力墙结构住宅楼结构施工CAD大样图
- 发布时间:2021-05-09
- 评论次数:0
- 浏览次数:0
- 文件大小:3.7 MB
- 收藏次数:0
- 
								文件名称: 附件-995888976075657558757.rar 附件-995888976075657558757.rar
								剪力墙结构住宅楼下载
							
						- 3600平6层带底商剪力墙结构住宅结构CAD施工大样图(建筑大样图)(dwg)
- 4400平8层带底商剪力墙结构住宅楼结构CAD施工大样图(建筑大样图)(dwg)
- 高层带底商剪力墙住宅结构施工方案图纸CAD含建筑
- 4400平米8层带底商剪力墙结构住宅楼建筑结构施工CAD大样图
- 18层带两层底商框剪结构住宅楼建筑结构全套CAD施工大样图(dwg)
- 6745平米18层带两层底商框剪结构住宅楼建筑结构全套CAD施工大样图
- 6层框架安置房带底商结构施工方案图纸CAD
- 16000平18层框剪结构商住楼结构施工CAD大样图(两层底商含建筑CAD大样图)(dwg)
- 1590平6层砖混结构带底商住宅楼建筑结构CAD施工大样图(dwg)
- 11层短肢剪力墙底商小高层结构施工CAD图纸
- 某底商框支剪力墙住宅楼混凝土施工方案.doc
- 17层框架剪力墙结构高层住宅楼结构CAD施工图纸(两层底商裙房)
- 底商多层框架结构住宅楼建筑dwg格式CAD图纸
- 7层住宅带底商框架结构施工方案图纸CAD含水电图纸
- 18层剪力墙结构商住楼结构CAD施工大样图(3层底商辅房)(dwg)
- 9层带局部转换层框架剪力墙结构住宅楼结构施工CAD大样图
- 7500平11层框架剪力墙结构住宅楼结构施工CAD大样图
- 5200平11层剪力墙安置房建筑结构全套CAD施工图纸(裙房底商)(dwg)
- 7层带1层底商混凝土住宅结构施工方案大样图(dwg格式CAD)(独立基础)
- 3500平7层框架结构带商业网点住宅楼结构CAD施工大样图(建筑大样图)(dwg)
全部评论
						
							评论网友评论仅友表达个人看法,并不表明本站同意其观点,不得发布违反法律法规的内容!
						
						
 
	              	 
	              	 
	              	 
	              	 
	              	