豆豆网

 找回密码
 立即注册

QQ登录

只需一步,快速开始

查看: 3028|回复: 0

一份高层办公楼空调新风系统设计CAD施工图纸(计算书全直流变频多联机组)

[复制链接]

0

主题

0

帖子

1352

积分

超级版主

Rank: 8Rank: 8

积分
1352
发表于 2020-2-27 16:34:32 | 显示全部楼层 |阅读模式

该帖子包含附件可供参考学习和下载,您可以 搜索 更多您想要的资源


  • 附件设计说明:有
  • 建筑类别:办公
  • 建筑高度类型:高层建筑
  • 建筑设计面积:43215.08平方米
  • 图纸设计深度:施工图
  • 参考图纸:35张
  • 设计年代:近代
  • 设计内容:空调,通风,冷热源
  • 冷热源:电动压缩式冷水机组
  • 项目所在地:重庆

附件详情

一、项目概要:
该项目总建筑面积为43215.08m2....
二、冷热源:
办公楼均采用全直流变频多联机组提供冷热源,冷媒采用R410A环保冷媒...
三、空调系统:
1.空调室内机:采用天花板内藏风管式。
2.各房间采用室内机+中央预设新风风道。
3.空调多联机系统属二次设计范围...
四、通风系统:
1.所有空调面积内换气次数按1次/h计。
2.个人人均占有新风量按20m2/h计。
3.厨房设机械排风系统不包含在该资料内,厕所、过道排风由后期装饰单位进行设计...

图纸共35张。

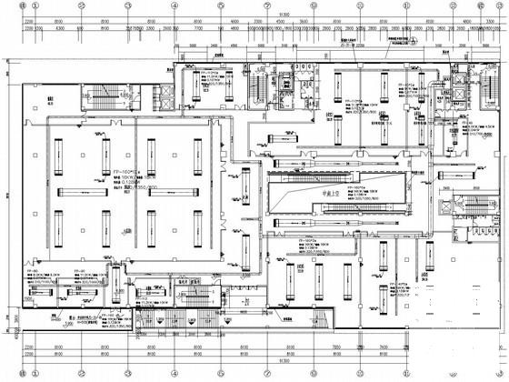
新风平面图

空调系统图图

设备定位尺寸平面

全新风空调系统 - 1
第 1 张图
全新风空调系统 - 2
第 2 张图
全新风空调系统 - 3
第 3 张图
全新风空调系统 - 4
第 4 张图
以上是部分图纸截图,有些图框没有放大后再截图,可能截图里不清晰或者看不到内容,您可以在下载后查看具体内容

温馨提示:该资料由网友于2020-2-27 16:34:32上传分享,您可以下载该资料进行学习和参考,如有侵权内容或者违法行为,请及时联系站长删除,如有疑问,您可以在暖通空调专区发帖交流相关知识。

附件2099v11ede2swe2ese111s2201.rar

4.2 MB

下载  售价: 100 积分    赚积分

全新风空调系统相关帖子

回复

使用道具 举报

您需要登录后才可以回帖 登录 | 立即注册

本版积分规则

QQ|联系我们|豆豆网 ( 苏ICP备20004746号-1 )

GMT+8, 2025-12-28 21:09 , Processed in 0.050944 second(s), 27 queries .

本站所有内容均由网友自主分享,如有侵权内容或者违法行为,请及时联系站长删除,本站将根据实际情况进行积分奖励!请查看:免责声明

快速回复 返回顶部 返回列表