豆豆网

 找回密码
 立即注册

QQ登录

只需一步,快速开始

查看: 555|回复: 0

一份2层综合办公楼通风排烟系统设计CAD施工图纸

[复制链接]

0

主题

0

帖子

1085

积分

超级版主

Rank: 8Rank: 8

积分
1085
发表于 2020-2-27 17:02:48 | 显示全部楼层 |阅读模式

该帖子包含附件可供参考学习和下载,您可以 搜索 更多您想要的资源


  • 附件设计说明:有
  • 建筑类别:办公
  • 建筑高度类型:多层建筑
  • 建筑设计面积:6231.14平方米
  • 建筑地上层数:2层
  • 建筑地下层数:1层
  • 图纸设计深度:施工图
  • 参考图纸:6张
  • 设计年代:近代
  • 设计内容:通风,防排烟
  • 送风方式:散流器送风
  • 项目所在地:重庆

附件详情

  • 设计说明
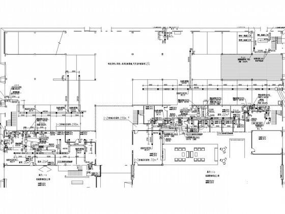
  • 通风平面图
  • 排烟示意图

附件详情

一、项目概要:
1.该项目属多层公共建筑,地下1层,地上2层,建筑高度9.5m,总建筑设计面积:6231.14m ,其中地上建筑设计面积:6014.34m , 地下建筑设计面积:216.8m。地下层为水泵房;地上层为汽修、维护、综合办公等配套用房。

二、通风排烟系统:
1.自然排烟、机械排烟系统

图纸共6张。

排烟风机平面

通风平面局部放大图

排烟系统示意图

第 1 张图
第 1 张图
第 2 张图
第 2 张图
第 3 张图
第 3 张图
第 4 张图
第 4 张图
以上是部分图纸截图,有些图框没有放大后再截图,可能截图里不清晰或者看不到内容,您可以在下载后查看具体内容

温馨提示:该资料由网友于2020-2-27 17:02:48上传分享,您可以下载该资料进行学习和参考,如有侵权内容或者违法行为,请及时联系站长删除,如有疑问,您可以在建筑施工专区发帖交流相关知识。

附件2099v11ede2secwcscccfsf1fd.rar

1.14 MB

下载  售价: 100 积分    赚积分

相关帖子

回复

使用道具 举报

您需要登录后才可以回帖 登录 | 立即注册

本版积分规则

QQ|联系我们|豆豆网 ( 苏ICP备20004746号-1 )

GMT+8, 2025-12-25 22:16 , Processed in 0.025618 second(s), 27 queries .

本站所有内容均由网友自主分享,如有侵权内容或者违法行为,请及时联系站长删除,本站将根据实际情况进行积分奖励!请查看:免责声明

快速回复 返回顶部 返回列表