豆豆网

 找回密码
 立即注册

QQ登录

只需一步,快速开始

查看: 652|回复: 0

5层公寓楼采暖通风设计CAD施工图纸

[复制链接]

0

主题

0

帖子

1737

积分

超级版主

Rank: 8Rank: 8

积分
1737
发表于 2020-2-27 22:11:42 | 显示全部楼层 |阅读模式

该帖子包含附件可供参考学习和下载,您可以 搜索 更多您想要的资源


  • 附件设计说明:有
  • 建筑类别:住宅
  • 建筑高度类型:多层建筑
  • 建筑地上层数:5层
  • 图纸设计深度:施工图
  • 参考图纸:7张
  • 设计年代:近代
  • 设计内容:通风, 采暖
  • 冷热源:市政热网
  • 采暖系统:散热器供暖
  • 项目所在地:内蒙古

附件详情

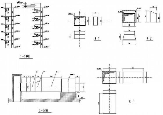
稿件为内蒙古某公寓楼采暖通风设计施工图,地上五层。该项目采暖系统热媒为95/70℃热水,由工业场地热力管网供给。本栋建筑采暖热负荷为372.9kW。采暖系统为上供上回同程式系统;散热器选用钢管柱型散热器……

,图纸共7张。

采暖系统图

剖面图

公寓楼采暖通风 - 1
第 1 张图
公寓楼采暖通风 - 2
第 2 张图
公寓楼采暖通风 - 3
第 3 张图
公寓楼采暖通风 - 4
第 4 张图
以上是部分图纸截图,有些图框没有放大后再截图,可能截图里不清晰或者看不到内容,您可以在下载后查看具体内容

温馨提示:该资料由网友于2020-2-27 22:11:42上传分享,您可以下载该资料进行学习和参考,如有侵权内容或者违法行为,请及时联系站长删除,如有疑问,您可以在建筑施工专区发帖交流相关知识。

附件2099v11ede2es10wsfw02e1c10.rar

820.55 KB

下载  售价: 100 积分    赚积分

公寓楼采暖通风相关帖子

回复

使用道具 举报

您需要登录后才可以回帖 登录 | 立即注册

本版积分规则

QQ|联系我们|豆豆网 ( 苏ICP备20004746号-1 )

GMT+8, 2025-12-28 03:22 , Processed in 0.015574 second(s), 27 queries .

本站所有内容均由网友自主分享,如有侵权内容或者违法行为,请及时联系站长删除,本站将根据实际情况进行积分奖励!请查看:免责声明

快速回复 返回顶部 返回列表