豆豆网

 找回密码
 立即注册

QQ登录

只需一步,快速开始

查看: 3066|回复: 0

一份4层商业办公大厦空调通风及防排烟系统设计CAD施工图纸(采暖设计)

[复制链接]

0

主题

0

帖子

1516

积分

超级版主

Rank: 8Rank: 8

积分
1516
发表于 2020-2-26 10:37:17 | 显示全部楼层 |阅读模式

该帖子包含附件可供参考学习和下载,您可以 搜索 更多您想要的资源


  • 附件设计说明:有
  • 建筑类别:办公,商业
  • 建筑高度类型:多层建筑
  • 建筑设计面积:57473.88平方米
  • 建筑地上层数:4层
  • 图纸设计深度:施工图
  • 参考图纸:40张
  • 设计年代:近代
  • 设计内容:空调,通风,采暖,防排烟,冷热源
  • 冷热源:空气调节器
  • 空调系统:制冷剂系统
  • 送风方式:散流器送风

附件详情

一、项目概要:

该项目位于上海市,是一个商业办公大厦建筑,建筑面积57473.88平米。图纸内容包含设计及施工说明,主要设备材料表及图例,空调通风平面图,通风及排烟平面图,空调系统原理图等...

二、空调系统:多联分体空调热泵机组,分体壁挂冷暖空调,冷暖立柜型分体空调...

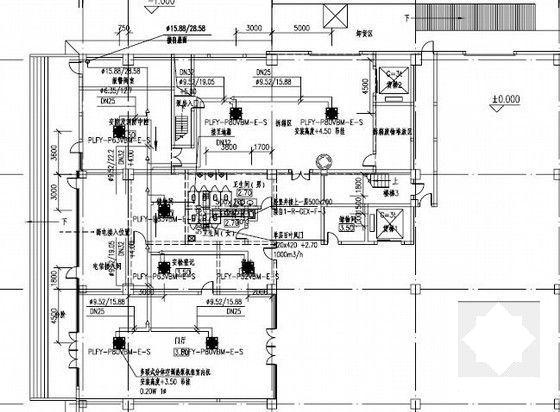
三、 通风防排烟 系统:该项目排风系统包括排烟系统,事故排风系统,一般排风系统...


三层通风及排烟平面图

二层空调平面图

一层空调、通风平面图(二)

一层空调、通风平面图(一)

一层通风防排烟平面图(三)

一层通风防排烟平面图

二层通风防排烟平面图

大厦防排烟 - 1
第 1 张图
大厦防排烟 - 2
第 2 张图
大厦防排烟 - 3
第 3 张图
大厦防排烟 - 4
第 4 张图
大厦防排烟 - 5
第 5 张图
大厦防排烟 - 6
第 6 张图
大厦防排烟 - 7
第 7 张图
大厦防排烟 - 8
第 8 张图
以上是部分图纸截图,有些图框没有放大后再截图,可能截图里不清晰或者看不到内容,您可以在下载后查看具体内容

温馨提示:该资料由网友于2020-2-26 10:37:17上传分享,您可以下载该资料进行学习和参考,如有侵权内容或者违法行为,请及时联系站长删除,如有疑问,您可以在商业建筑专区发帖交流相关知识。

附件2099v11ede2sdcd20ecs1cdf20.rar

9.58 MB

下载  售价: 100 积分    赚积分

大厦防排烟相关帖子

回复

使用道具 举报

您需要登录后才可以回帖 登录 | 立即注册

本版积分规则

QQ|联系我们|豆豆网 ( 苏ICP备20004746号-1 )

GMT+8, 2025-12-28 18:14 , Processed in 0.016296 second(s), 28 queries .

本站所有内容均由网友自主分享,如有侵权内容或者违法行为,请及时联系站长删除,本站将根据实际情况进行积分奖励!请查看:免责声明

快速回复 返回顶部 返回列表