豆豆网

 找回密码
 立即注册

QQ登录

只需一步,快速开始

查看: 2876|回复: 0

一份4层商务酒店采暖、防排烟及消防系统CAD施工图纸

[复制链接]

0

主题

0

帖子

1470

积分

超级版主

Rank: 8Rank: 8

积分
1470
发表于 2020-2-28 23:08:12 | 显示全部楼层 |阅读模式

该帖子包含附件可供参考学习和下载,您可以 搜索 更多您想要的资源


  • 附件设计说明:有
  • 建筑类别:酒店
  • 建筑高度类型:多层建筑
  • 建筑设计面积:9930平方米
  • 建筑地上层数:4层
  • 建筑地下层数:1层
  • 图纸设计深度:施工图
  • 参考图纸:25张
  • 采暖系统:热水辐射

附件详情

一、工程概述

1.建筑概况:该项目为二类综合楼,总建筑面积为9930平方米,共5层,地上4层地下一层。
2.室外参数:本建筑建设地点为XX市,属于严寒C地区,室外采暖计算温度Tw=-19.7℃。
3.供暖参数:总散热量为496.5kW,耗热量指标50W/平方米。
4.给排水量:本楼最高日用水量为41.25立方米/天,最大小时用水量为3.78立方米/时,最高日排水量为37.125立方米/天。

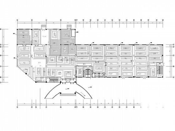
二层采暖干管排烟平面图

三四层采暖干管排烟平面图

采暖系统图

地下室采暖干管平面图

商务酒店消防 - 1
第 1 张图
商务酒店消防 - 2
第 2 张图
商务酒店消防 - 3
第 3 张图
商务酒店消防 - 4
第 4 张图
商务酒店消防 - 5
第 5 张图
以上是部分图纸截图,有些图框没有放大后再截图,可能截图里不清晰或者看不到内容,您可以在下载后查看具体内容

温馨提示:该资料由网友于2020-2-28 23:08:12上传分享,您可以下载该资料进行学习和参考,如有侵权内容或者违法行为,请及时联系站长删除,如有疑问,您可以在酒店建筑专区发帖交流相关知识。

附件2099v11ede2sdfw0sewfccd00s.rar

2.73 MB

下载  售价: 100 积分    赚积分

商务酒店消防相关帖子

回复

使用道具 举报

您需要登录后才可以回帖 登录 | 立即注册

本版积分规则

QQ|联系我们|豆豆网 ( 苏ICP备20004746号-1 )

GMT+8, 2025-12-26 18:51 , Processed in 0.016507 second(s), 27 queries .

本站所有内容均由网友自主分享,如有侵权内容或者违法行为,请及时联系站长删除,本站将根据实际情况进行积分奖励!请查看:免责声明

快速回复 返回顶部 返回列表