豆豆网

 找回密码
 立即注册

QQ登录

只需一步,快速开始

查看: 3015|回复: 0

一份16层酒店宾馆大厦空调通风系统设计CAD施工图纸(蒸汽溴化锂制冷机)

[复制链接]

0

主题

0

帖子

1577

积分

超级版主

Rank: 8Rank: 8

积分
1577
发表于 2020-2-29 20:37:33 | 显示全部楼层 |阅读模式

该帖子包含附件可供参考学习和下载,您可以 搜索 更多您想要的资源


  • 附件设计说明:有
  • 建筑类别:宾馆,酒店
  • 建筑高度类型:高层建筑
  • 建筑地上层数:16层
  • 图纸设计深度:施工图
  • 参考图纸:19张
  • 设计内容:空调,通风
  • 冷热源:电动压缩式冷水机组
  • 空调系统:全空气系统
  • 水系统:单式泵,变流量,双管制
  • 送风方式:散流器送风

附件详情

一、项目概要:
地上16层,为一酒店宾馆大厦建筑...
二、冷热源:
冷源由地下室蒸汽溴化锂制冷机供给...
三、空调系统:
1.办公部分采用风机盘管加新风系统。
2.冷温水系统为一次泵变流量系统,管路为两管制,夏季供冷,冬季供热...

图纸共19张。


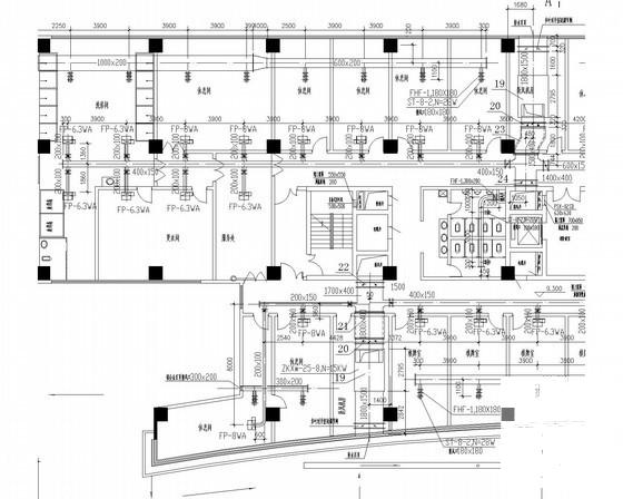
地下室平时通风平面图

空调风道平面图

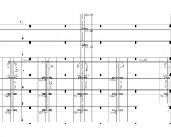
剖面图

酒店宾馆设计施工 - 1
第 1 张图
酒店宾馆设计施工 - 2
第 2 张图
酒店宾馆设计施工 - 3
第 3 张图
酒店宾馆设计施工 - 4
第 4 张图
以上是部分图纸截图,有些图框没有放大后再截图,可能截图里不清晰或者看不到内容,您可以在下载后查看具体内容

温馨提示:该资料由网友于2020-2-29 20:37:33上传分享,您可以下载该资料进行学习和参考,如有侵权内容或者违法行为,请及时联系站长删除,如有疑问,您可以在酒店建筑专区发帖交流相关知识。

附件2099v11edecwcd00c0c2scesd2.rar

2.25 MB

售价: 100 积分    赚积分

酒店宾馆设计施工相关帖子

回复

使用道具 举报

您需要登录后才可以回帖 登录 | 立即注册

本版积分规则

QQ|联系我们|豆豆网 ( 苏ICP备20004746号-1 )

GMT+8, 2025-12-22 23:56 , Processed in 0.016564 second(s), 27 queries .

本站所有内容均由网友自主分享,如有侵权内容或者违法行为,请及时联系站长删除,本站将根据实际情况进行积分奖励!请查看:免责声明

快速回复 返回顶部 返回列表