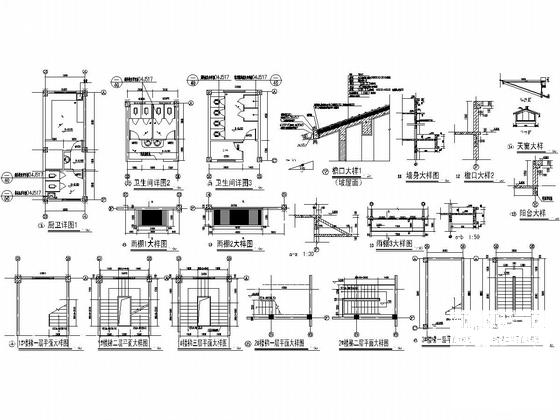
3层框架结构村委会及幼儿园综合楼结构施工CAD大样图
- 发布时间:2021-05-07
- 评论次数:0
- 浏览次数:0
- 文件大小:1.2 MB
- 收藏次数:0
-
文件名称:
附件-995888068068908689008.rar
村委会结构下载
- 3层框架结构幼儿园结构CAD施工大样图(dwg)
- 地上3层混凝土框架结构幼儿园结构施工CAD大样图
- 地上3层框架结构幼儿园结构施工CAD大样图
- 3层框架结构城市主人幼儿园结构施工CAD大样图
- 3层框架结构幼儿园结构施工CAD大样图
- 多层框架结构村委会及村民住房结施cad平面布置图
- 一份3层框架村委会综合楼结构CAD施工图纸(平法表示)
- 3层框架结构中学综合楼结构CAD施工大样图
- 5层框架结构公司综合楼结构施工CAD大样图
- 5层框架结构小学教学综合楼结构施工CAD大样图
- 地上4层框架结构综合楼结构施工CAD大样图
- 4000平6层框架结构综合楼结构施工CAD大样图
- 3层幼儿园综合楼框架结构CAD施工图纸2019(dwg)(丙级独立基础)
- 地上3层9班框架结构幼儿园综合楼CAD施工图纸
- 框架结构幼儿园综合楼项目临时用电工程施工方案.doc
- 村委会综合楼空调设计CAD图纸.dwg
- 6层框架结构综合楼改造加固施工CAD大样图
- 5层框架结构办公综合楼建筑施工CAD大样图
- 3层钢混框架结构幼儿园结构CAD施工大样图2016(dwg)
- 框架结构幼儿园建筑结构全CAD施工大样图(dwg)(6度抗震)
全部评论
评论网友评论仅友表达个人看法,并不表明本站同意其观点,不得发布违反法律法规的内容!
