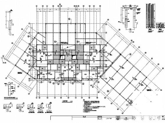
25层剪力墙结构住宅楼结构施工CAD大样图
- 发布时间:2021-05-07
- 评论次数:0
- 浏览次数:0
- 文件大小:2.58 MB
- 收藏次数:0
-
文件名称:
附件-995888087790686770856.zip
相关下载
- 16层剪力墙结构住宅楼结构施工CAD大样图
- 地上29层剪力墙结构住宅楼结构施工CAD大样图
- 地上25层剪力墙结构住宅楼结构施工CAD大样图
- 地上8层剪力墙结构住宅楼结构施工CAD大样图
- 9层剪力墙结构住宅楼结构施工CAD大样图
- 10层剪力墙结构住宅楼结构施工CAD大样图
- 28层剪力墙结构住宅楼结构施工CAD大样图
- 11层剪力墙结构住宅楼结构施工CAD大样图
- 30层剪力墙结构住宅楼结构施工CAD大样图
- 12层剪力墙结构住宅楼结构施工CAD大样图
- 33层剪力墙结构住宅楼结构施工CAD大样图
- 地上28层剪力墙结构住宅楼结构施工CAD大样图
- 地上30层剪力墙结构住宅楼结构施工CAD大样图
- 地上26层剪力墙结构住宅楼结构施工CAD大样图
- 小区剪力墙结构住宅楼结构施工大样图cad
- 21层剪力墙结构住宅楼结构施工CAD大样图
- 18层框架剪力墙结构住宅楼结构施工CAD大样图
- 19层剪力墙结构住宅楼结构施工CAD大样图
- 地上32层剪力墙结构住宅楼结构施工CAD大样图
- 11层剪力墙结构住宅楼结构施工CAD大样图(筏基)
全部评论
评论网友评论仅友表达个人看法,并不表明本站同意其观点,不得发布违反法律法规的内容!
