豆豆网

 找回密码
 立即注册

QQ登录

只需一步,快速开始

查看: 2402|回复: 0

一份4层农业综合服务中心给排水CAD施工图纸

[复制链接]

0

主题

0

帖子

1389

积分

超级版主

Rank: 8Rank: 8

积分
1389
发表于 2020-2-17 13:29:18 | 显示全部楼层 |阅读模式

该帖子包含附件可供参考学习和下载,您可以 搜索 更多您想要的资源


  • 附件设计说明:有
  • 建筑类别:农业建筑
  • 建筑高度类型:多层建筑
  • 建筑地上层数:4层
  • 参考图纸:8张
  • 设计年代:近代
  • 生活供水设计:生活给水系统
  • 排水设计:污水系统,废水系统
  • 消防设计:室外消火栓系统,室内消火栓系统
  • 供水方式:市政供水
  • 火灾危险等级:中危险级Ⅰ级
  • 消火栓用水量室外(L/S):20
  • 消火栓用水量室内(L/S):15
  • 项目所在地:山东

附件详情

该项目设有生活给水系统,排水系统,消防给水系统,雨水系统。
消防用水由两路市政管网供给,接自界区预留的2根DN100常高压消防给水管.管网压力0.35MPa,最不利点消火栓充实水柱长度不小于10米。
本建筑消防用水总量为35l/s,其中室内15l/s,室外20l/s。
屋面雨水系统局部采用内排水,采用87型雨水斗。
该项目的灭火器按火灾种类A类,火灾等级中危险级设置.

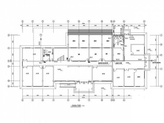
一层水平面图

四层水平面图

给排水系统图

第 1 张图
第 1 张图
第 2 张图
第 2 张图
第 3 张图
第 3 张图
第 4 张图
第 4 张图
以上是部分图纸截图,有些图框没有放大后再截图,可能截图里不清晰或者看不到内容,您可以在下载后查看具体内容

温馨提示:该资料由网友于2020-2-17 13:29:18上传分享,您可以下载该资料进行学习和参考,如有侵权内容或者违法行为,请及时联系站长删除,如有疑问,您可以在给水排水专区发帖交流相关知识。

附件2099v11edewccf11ee10212d0s.rar

769.84 KB

下载  售价: 100 积分    赚积分

相关帖子

回复

使用道具 举报

您需要登录后才可以回帖 登录 | 立即注册

本版积分规则

QQ|联系我们|豆豆网 ( 苏ICP备20004746号-1 )

GMT+8, 2025-12-17 03:23 , Processed in 0.016514 second(s), 27 queries .

本站所有内容均由网友自主分享,如有侵权内容或者违法行为,请及时联系站长删除,本站将根据实际情况进行积分奖励!请查看:免责声明

快速回复 返回顶部 返回列表