豆豆网

 找回密码
 立即注册

QQ登录

只需一步,快速开始

查看: 2603|回复: 0

国内7层商业综合体暖通空调系统及动力站设计CAD施工图纸(换热器机组)

[复制链接]

0

主题

0

帖子

629

积分

超级版主

Rank: 8Rank: 8

积分
629
发表于 2020-2-28 19:24:16 | 显示全部楼层 |阅读模式

该帖子包含附件可供参考学习和下载,您可以 搜索 更多您想要的资源


  • 附件设计说明:有
  • 建筑类别:商业,酒店,娱乐,餐饮
  • 建筑高度类型:多层建筑
  • 建筑地上层数:7层
  • 建筑地下层数:1层
  • 图纸设计深度:施工图
  • 参考图纸:62张
  • 设计年代:近代
  • 设计内容:空调,通风,采暖,防排烟,冷热源,动力,机房,人防
  • 冷热源:电动压缩式冷水机组,锅炉
  • 空调系统:全空气系统,空气-水系统
  • 采暖系统:热水辐射
  • 全空气系统:单风道
  • 送风方式:散流器送风
  • 节点大样:集分水器,风机盘管

附件详情

  • 设计说明书
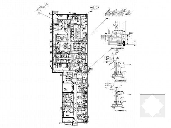
  • 通风空调平面图
  • 地暖平面图
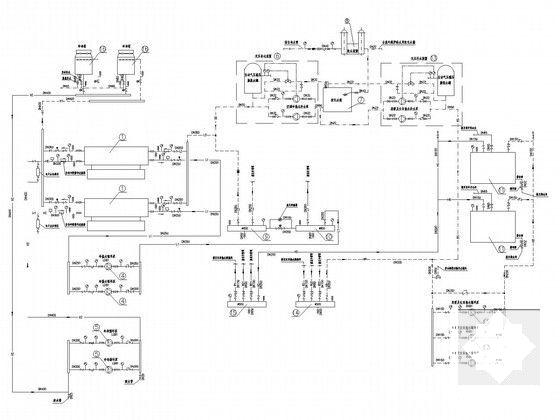
  • 板式换热器机组流程图
  • 热力入口系统图及立管图
  • 集分水器安装示意图
  • 设备层分水器进出水管示意图
  • 风机盘管水管立管图
  • 进线室集水器进出水管示意图
  • 空调水管平面图及节点详图
  • 采暖、空调立管图
  • 供冷供热系统原理图
  • 通风机房大样图
  • ......

附件详情

一、项目概要:
该项目为会议中心,1、2、3、4、11、16号楼设计,其中:1号楼为大堂及附属用房;2号楼为游泳馆及办公楼;3号楼为餐饮楼;4号楼地上一至六层为客房。地上七层为机房及设备用房;11号楼为动力站;16号楼为酒楼......
二、冷热源:
1.办公楼地下室水泵房内的板式换热机组。
2.由动力区锅炉房供给。空调机组及风机盘管冷热水由直燃机提供,夏季供回水温度为7/12°c。
三、空调系统:
1.大堂设单风道全空气处理系统。
2.采用风机盘管加新风系统。
3.分体空调,
四、采暖系统:
1.大堂设有地板辐射采暖系统,其供回水温度为55/45°c。
2.采暖系统为下供下回单管顺流式系统。
五、通风排烟系统:
1.地下室分三个防火分区,每个分区均设置了排风、排烟系统及新风、补风系统。
2.游泳馆设置单风道直流全新风空气处理系统及排风系统。
3.地下室办公、库房区设置送排风排烟系统。排风排烟合用风道,分设排风排烟风机......

图纸共62张。

板式换热器机组流程图

办公楼热力入口系统图及立管图

地下一层空调水管平面图及节点详图

供冷供热系统原理图

设备层分水器进出水管示意图

水泵房剖面图

通风机房大样图

首层采暖通风平面图

换热器设计图纸 - 1
第 1 张图
换热器设计图纸 - 2
第 2 张图
换热器设计图纸 - 3
第 3 张图
换热器设计图纸 - 4
第 4 张图
换热器设计图纸 - 5
第 5 张图
换热器设计图纸 - 6
第 6 张图
换热器设计图纸 - 7
第 7 张图
以上是部分图纸截图,有些图框没有放大后再截图,可能截图里不清晰或者看不到内容,您可以在下载后查看具体内容

温馨提示:该资料由网友于2020-2-28 19:24:16上传分享,您可以下载该资料进行学习和参考,如有侵权内容或者违法行为,请及时联系站长删除,如有疑问,您可以在商业建筑专区发帖交流相关知识。

附件2099v11ede2f0sdwf2cce012ff.rar

6.94 MB

下载  售价: 100 积分    赚积分

换热器设计图纸相关帖子

回复

使用道具 举报

您需要登录后才可以回帖 登录 | 立即注册

本版积分规则

QQ|联系我们|豆豆网 ( 苏ICP备20004746号-1 )

GMT+8, 2025-12-28 13:14 , Processed in 0.021773 second(s), 27 queries .

本站所有内容均由网友自主分享,如有侵权内容或者违法行为,请及时联系站长删除,本站将根据实际情况进行积分奖励!请查看:免责声明

快速回复 返回顶部 返回列表