豆豆网

 找回密码
 立即注册

QQ登录

只需一步,快速开始

查看: 3142|回复: 0

一份高层办公建筑群及地下建筑通风空调及防排烟系统设计CAD施工图纸(产业基地)

[复制链接]

0

主题

0

帖子

1592

积分

超级版主

Rank: 8Rank: 8

积分
1592
发表于 2020-3-13 23:11:56 | 显示全部楼层 |阅读模式

该帖子包含附件可供参考学习和下载,您可以 搜索 更多您想要的资源


  • 附件设计说明:有
  • 建筑类别:办公
  • 建筑高度类型:高层建筑
  • 建筑设计面积:20416平方米
  • 图纸设计深度:施工图
  • 参考图纸:57张
  • 设计年代:近代
  • 设计内容:空调,通风,防排烟
  • 冷热源:空气源热泵
  • 空调系统:空气-水系统
  • 水系统:单式泵,定流量,双管制
  • 送风方式:散流器送风
  • 项目所在地:上海

附件详情

  • 设计施工说明
  • 屋顶层空调通风平面图
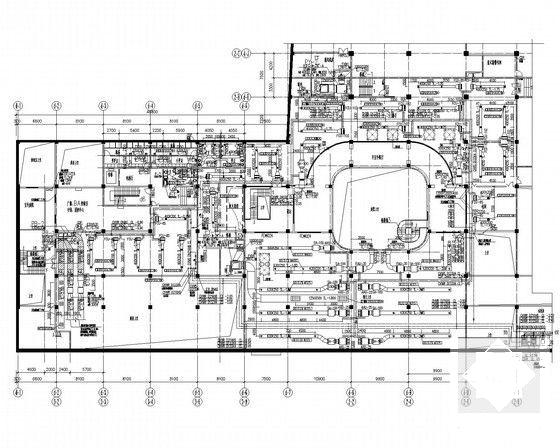
  • 一层空调通风平面图
  • 二层空调通风平面图
  • 三层空调通风平面图
  • 四层空调通风平面图
  • ...
  • 空调通风平面图
  • 剖面图及设备接管详图
  • 通风排烟系统原理图
  • 1~4#楼空调水系统流程图

附件详情

一、项目概要:
项目为一办公建筑群及地下建筑,其中:1#建筑总高度77.90m,地上19层,办公用,2、3、4#为丙类生产楼,总建筑20416平方米...
二、冷热源:
螺杆式风冷热泵机组,夏季供水温度为7/12°C,冬季供水温度为45/40°C...
三、空调系统:
1.空调水系统为一次泵定水量双管制系统。
2.空调房间采用风机盘管或薄型吊装空调器加新风的空调系统。
3.送风采用方形散流器下送风及旋流风口下送风,回风采用百叶顶部回风...
四、通风系统:
1.各层公共卫生间采用机械排风系统,排风换气次数>10次/h,设备机房均按要求设置机械通风,污水泵房换气次数>40次/h。
2.厨房热加工间的灶具排风量按房间换气次数40次/h考虑...
五、防排烟系统:
1.地下层南侧挑空餐厅设机械排烟系统。
2.办公及楼梯间设有可开启外窗且满足自然排烟要求,均采用自然排烟方式防排烟...

图纸共57张。


地下空调平面图

1~4#楼空调水系统流程图

地下空调通风平面图

二层空调通风平面图

空调水系统流程图

空调通风平面拆分图

空调通风平面图

剖面图

卫生间通风平面图

厂房空调通风平面图

建筑群通风系统 - 1
第 1 张图
建筑群通风系统 - 2
第 2 张图
建筑群通风系统 - 3
第 3 张图
建筑群通风系统 - 4
第 4 张图
建筑群通风系统 - 5
第 5 张图
建筑群通风系统 - 6
第 6 张图
建筑群通风系统 - 7
第 7 张图
以上是部分图纸截图,有些图框没有放大后再截图,可能截图里不清晰或者看不到内容,您可以在下载后查看具体内容

温馨提示:该资料由网友于2020-3-13 23:11:56上传分享,您可以下载该资料进行学习和参考,如有侵权内容或者违法行为,请及时联系站长删除,如有疑问,您可以在暖通空调专区发帖交流相关知识。

附件2099v11ede2dffsd1cc2ceeccf.rar

8.31 MB

下载  售价: 100 积分    赚积分

建筑群通风系统相关帖子

回复

使用道具 举报

您需要登录后才可以回帖 登录 | 立即注册

本版积分规则

QQ|联系我们|豆豆网 ( 苏ICP备20004746号-1 )

GMT+8, 2025-11-3 22:50 , Processed in 0.048115 second(s), 28 queries .

本站所有内容均由网友自主分享,如有侵权内容或者违法行为,请及时联系站长删除,本站将根据实际情况进行积分奖励!请查看:免责声明

快速回复 返回顶部 返回列表