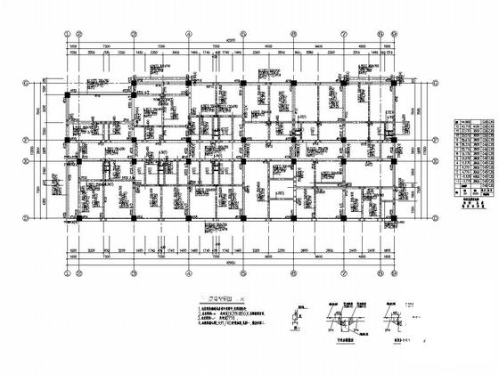
11000平11层框架结构服务中心综合楼结构施工CAD大样图
- 发布时间:2021-05-09
- 评论次数:0
- 浏览次数:0
- 文件大小:6.68 MB
- 收藏次数:0
- 
								文件名称: 附件-995888069908697009655.rar 附件-995888069908697009655.rar
								综合服务楼下载
							
						- 11000平11层框架结构服务中心综合楼结构施工CAD大样图(建筑CAD大样图)(dwg)
- 4000平6层框架结构综合楼结构施工CAD大样图
- 11000平30层剪力墙结构住宅楼建筑结构CAD施工大样图(dwg)
- 11000平28层A级高度住宅楼详细结构CAD施工图纸(dwg)(6度抗震)
- 2800平4层框架结构别墅建筑结构施工CAD大样图
- 860平3层框架结构办公楼结构施工CAD大样图
- 888平3层框架结构别墅结构施工CAD大样图
- 950平4层框架结构别墅结构施工CAD大样图
- 1300平3层框架结构科技研发楼结构施工CAD大样图
- 6层框架结构广电服务中心办公楼结构施工CAD大样图
- 7层框架结构公共卫生服务中心结构施工CAD大样图
- 3层框架结构中学综合楼结构CAD施工大样图
- 5层框架结构公司综合楼结构施工CAD大样图
- 5层框架结构小学教学综合楼结构施工CAD大样图
- 地上4层框架结构综合楼结构施工CAD大样图
- 接待服务中心框架结构CAD图纸(dwg)
- 6层框架结构综合楼改造加固施工CAD大样图
- 5层框架结构办公综合楼建筑施工CAD大样图
- 2000平4层框架结构社区幼儿园建筑结构施工CAD大样图
- 810平两层框架结构社区服务用房建筑结构施工CAD大样图
全部评论
						
							评论网友评论仅友表达个人看法,并不表明本站同意其观点,不得发布违反法律法规的内容!
						
						
 
	              	 
	              	 
	              	 
	              	 
	              	