豆豆网

 找回密码
 立即注册

QQ登录

只需一步,快速开始

查看: 2572|回复: 0

一份办公大厦空调通风系统设计CAD施工图纸

[复制链接]

0

主题

0

帖子

1244

积分

超级版主

Rank: 8Rank: 8

积分
1244
发表于 2020-3-14 09:48:21 | 显示全部楼层 |阅读模式

该帖子包含附件可供参考学习和下载,您可以 搜索 更多您想要的资源


  • 附件设计说明:无
  • 建筑类别:办公
  • 建筑高度类型:单层建筑
  • 图纸设计深度:施工图
  • 参考图纸:2张
  • 设计年代:近代
  • 设计内容:空调,通风
  • 空调系统:空气-水系统
  • 送风方式:散流器送风
  • 项目所在地:北京

附件详情

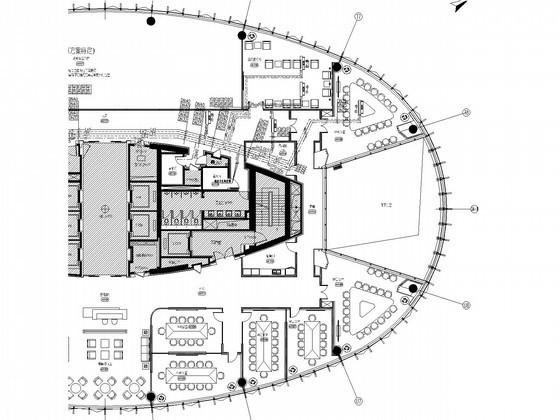
该项目位于北京市,是一个办公大厦建筑,图纸内容主要包括通风空调平面图,空调水路平面图等...

通风空调平面图(二)

空调水路平面图(一)

空调水路平面图(二)

第 1 张图
第 1 张图
第 2 张图
第 2 张图
第 3 张图
第 3 张图
第 4 张图
第 4 张图
以上是部分图纸截图,有些图框没有放大后再截图,可能截图里不清晰或者看不到内容,您可以在下载后查看具体内容

温馨提示:该资料由网友于2020-3-14 09:48:21上传分享,您可以下载该资料进行学习和参考,如有侵权内容或者违法行为,请及时联系站长删除,如有疑问,您可以在暖通空调专区发帖交流相关知识。

附件2099v11edecwwewcs2022dsce0.rar

959.89 KB

下载  售价: 100 积分    赚积分

相关帖子

回复

使用道具 举报

您需要登录后才可以回帖 登录 | 立即注册

本版积分规则

QQ|联系我们|豆豆网 ( 苏ICP备20004746号-1 )

GMT+8, 2025-12-15 17:57 , Processed in 0.017535 second(s), 27 queries .

本站所有内容均由网友自主分享,如有侵权内容或者违法行为,请及时联系站长删除,本站将根据实际情况进行积分奖励!请查看:免责声明

快速回复 返回顶部 返回列表